Article

Historic American Landscape and Garden Project

Preliminary Report on the Historic American Landscape and Garden Project

Greyscale photo of garden with picket fence and gate
Garden of Henry W. Longfellow Place (HABS MA-169)

HABS/Frank O. Branzetti

This report is based on preliminary investigation of drawings, photographs, field notes, and index cards in the HABS/HAER collection at the Library of Congress during April 2001 by Robin Veder for the Historic American Landscapes Survey. Materials from the National Archives were also consulted, thanks to research assistance from Martin Perschler. This text was adapted for web by Emma Wuepper, National Council for Preservation Education Intern, Heritage Documentation Programs in 2021.

Between 1935 and 1940, the Historic American Landscape and Garden Project (HALGP) created at least forty records of historic Massachusetts gardens, six additional records of fences, and two records of stone markers. The project was administered by the National Park Service (NPS)'s Historic American Buildings Survey (HABS) through District Officer Frank Chouteau Brown in the Massachusetts state office.

The project was established under the sponsorship of the Massachusetts State Library on May 24, 1935. Five days later the Historic American Buildings Survey received Works Progress Administration (WPA) funding and appears to have administered the project. During the first two years, the Massachusetts Federal Emergency Relief Administration (ERA) funded the recording of four gardens. The remainder of the HALGP records that name a funding source credit the WPA under project numbers 265-6907 (20 records), 65-1715 (6 records), 465-14-3-414 (2 records), or 665-14-3-254 (15 records). A few projects credit funding from more than one source.1

HALGP's stated intention was to record gardens established prior to 1840.2 Many had actually been laid out after that time and most were in a state of decline or neglect, like other estate gardens in the region following the introduction of estate taxes and the stock market crash of 1929. Although at least one garden (Henry W. Longfellow Garden, HABS MA-169) had been designed fairly recently by a recognized landscape architect, Ellen Shipman, documentation of contemporary landscape design was not a priority for the project.

The selection of gardens for documentation may have been influenced by associated groups at the WPA and the American Society of Landscape Architects (ASLA). The WPA Federal Art Project had a Historic Gardens unit within its Index of American Design, active in New York during the mid-1930s.3 At the same time, the ASLA was actively gathering data for its Garden Index of historic and contemporary "noteworthy examples of landscape architecture." The ASLA Garden Index committee, chaired by Elizabeth G. Pattee, included Bremer W. Pond, who was also the chair of the ASLA's special advisory committee to the HALGP. Bradford Williams and Hallam L. Movius were the other two members of the ASLA-HALGP advisory group.4

HABS Landscape Documentation Projects and the Scope of HALGP

Greyscale photograph of wheel shaped garden lawn in front of house
Garden at Count Rumford Birthplace (HABS MA-240)

HABS/Frank O. Branzetti

Prior to the establishment of HALGP, HABS had documented one garden, "The Lindens" (HABS MA-2-33), in Danvers, Massachusetts. The garden had been roughly measured by members of the architectural team during 1934, and their field notes show errors in the spelling of plant names such as "pionies" and "furs." One of HALGP's first projects was to re-measure the grounds, resulting in the addition of two plans by R. Newton Mayall and Rylla E. Saunier. When NPS administrators Thomas C. Vint and John P. O'Neill praised the drawings of "The Lindens," they may have been referring to Mayall and Sauniers' improvements to the drawing set.5

HABS was interested in other landscape elements that also became part of the HALGP agenda. HABS documented fences and stone markers through the 1930s, both independent from and in concert with HALGP. The HALGP garden records frequently included detailed elevations and construction drawings of fences and gates, in addition to summer houses, well pumps, lattices, arches, and other architectural garden features or structures. Like the HABS architects, the HALGP landscape architects may have been interested in the commercial viability of reproducing historic garden features. Contemporaneous with HALGP documentation of the Dr. Oliver Prescott milestones (HABS MA-203) and Meridian Stones in Nantucket (HABS MA-183), HABS also ran a 29-part record of milestones in the Boston vicinity (HABS MA-128). Although there are 49 total HABS numbers assigned to Massachusetts milestone records, only these three projects, all conducted in 1935-1937, use drawings. While the HALGP records both include a location map for the stone markers, the non-HALGP record (HABS MA-128) has three location maps that provide much greater detail about the relationship of the stones to actual measurement of space. Aside from a few fence studies by Louise Rowell or Margaret Webster that did include plans (Capt. Bill Nelson Fence, HABS MA-254, and Loring-Greenough Place, HABS MA-272), the photography and remaining drawings of both the fences and the stones tended to treat each as an object of antiquity rather than a functional marker of spatial boundaries and relations. Consequently, the majority of the evidence presented in this report is concerned with HALGP documentation of grounds and gardens.

In the summer of 1938, HABS asked the Massachusetts state WPA for funding to extend HALGP documentation to include town commons, church greens, and training fields. Although this correspondence and Brown's August 1938 HALGP report both refer to existing preliminary research on commons, that material does not appear to have been transmitted to the Library of Congress. Nor does it appear that this proposal received funds and was able to progress, but research into the WPA files may reveal otherwise.6

Greyscale photo of garden with rose bushes
Pickering Dodge Place (HABS MA-184)

HABS/Frank O. Branzetti

Staff

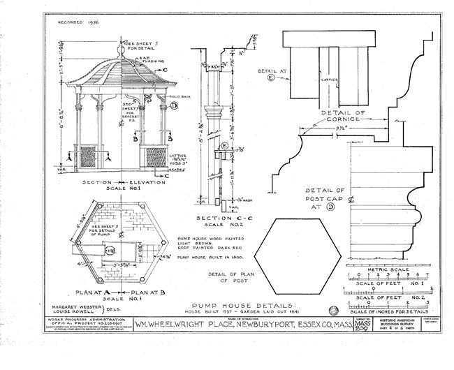
Measured drawing of garden gazebo
Sheet 3 depicting the garden pumphouse of William Wheelwright Place (HABS MA-209)

HABS/Margaret Webster and Louise Rowell

At the beginning of the project in 1935, there were seven landscape architects, one civil engineer and surveyor, and one architect employed for the project. Some of their roles can be identified from the names shown on the field notes and drawings cover sheets. R. Newton Mayall, Louise Rowell and Margaret M. Webster executed almost all of the landscape plans, sometimes collaboratively, and sometimes with assistance from George W. Jenness or Rylla E. Saunier. George P. Oviatt, Henry Hale, W. Pell Pulis, Alfred Cavileer Jr., Ruth W. Williams, Percival S. Rice, Raymond Van Schaack, M.W. Mayall, E. Newton Mayall, T. Perry, J. Anno, G. Garten, and L. McLaughlin were employed to assist with the measurements and drawings. Drawings of garden structure and feature details were most often made by R. N. Mayall, Rowell, Webster, Jenness, Saunier, Oviatt, Hale, Pulis and Cavileer.

Between December 12, 1935 and March 3, 1936, HALGP employees were assigned to the Art Project, according to Brown's 1938 report. However, several members of the team were still on the job, measuring the Adams Mansion Flower Garden (HABS MA-215) and the Pickering-Dodge Place (HABS MA-184) on at least eight dates during that period.7 The nature of this Art Project is unknown.

Arthur C. Haskell and Frank O. Branzetti photographed several of the sites recorded by the HALGP team, generally submitting only a few photos per site. Most of the photographs were taken by Branzetti in 1940 and 1941, after the drawings were completed. Haskell photographed several fences, but usually focused on the buildings and their interiors. In a few cases, Branzetti photographed the same site in more than one season. Capturing the garden in spring, summer or fall, but photographing the associated buildings or structures in the winter when the deciduous trees were bare, Branzetti maximized the documentary value of his photographs. (See Wheelwright House and Garden (HABS MA-209) and Jerathmeel Pierce Place (HABS MA-224).)

R. Newton Mayall was the official supervisor of HALGP from its inception until October of 1937, but from the beginning, Webster and Rowell were frequently responsible for overseeing and verifying measurements for the final drawings. When Mayall signed the drawings cover sheets as the person responsible for checking the measurements, he was also usually the only person there named for contributions to the field measurements, information that the field notes show to be incorrect. When Webster or Rowell took this responsibility, as they often did, they were diligent about attempting to include the names of the team members on the cover sheet, although often space required the use of "et. al" as an abbreviated nod to comrades.

During October 1937, R. Newton Mayall "was dropped from the project" for unknown reasons. This change in personnel may have been related to a change in funding: WPA 665-14-3-254 is the only funding source credited for records for which field measurement began in or after October 1937. Mayall appears to have stayed on in a diminished capacity to complete transmittal of projects, for in a November 1937 letter Frank Chouteau Brown - who took over Mayall's supervisory duties about this time - mentions Mayall's continued and possible future involvement.8 Also, Mayall's name appears on the credit line of at least five LC HABS index cards dated from 1938. In each case, the dates provided on this source correspond to the completion date for the set of drawings referenced. These were not projects for which Mayall made drawings or signed off on the final measurements, although Mayall was a member of the measurement team on at least three of the projects, and all of the measurement projects had begun prior to October 1937. The secretary who "was declared ineligible" soon afer R. Newton Mayall's official dismissal in October 1937 may have been M.W. Mayall, whose name appears on some field records, including the historic reports that had been part of this secretary's job according to Brown.

HALGP Documentation Methodology

Measured drawing of picket fence and archway
Sheet 1 of measured drawings for the Elizabeth Billings Fence (HABS MA-277)

HABS/Alfred Cavileer Jr. and Louise Rowell

HALGP's plan was to conduct historic research, create measured drawings, and photograph each selected site. The standards for research are admirable for their time. R. Newton Mayall, who conducted much of the research from the WPA office in Cambridge, sometimes with assistance from M.W. Mayall (relation unknown), recognized the shortfalls of the prolific vanity press and pseudo-historic garden publications of the early twentieth century: long on romance and short on fact. Mayall and Mayall turned instead to primary records: tax maps, town records, registry of deeds, and family papers in local historical societies, as well as published nineteenth-century sources like the records of the Massachusetts Horticultural Society. When possible, oral histories were conducted and historic plans wer recopied for inclusion in the final drawings set.

Measurement of the sites followed the historic research. Some sites were measured intensively during a few day's work while others were revisited several times over a year's stretch. The teams created detailed plans of the topography, hardscaping and vegetation. Some field notes show use of a chart method for thoroughly recording spot elevations (for examples, see HABS MA-202, 205, 196, 215, and 135), while others made such records directly on a plan. There is no evidence of archaeological techniques, except where it was noted that a hardscape material was being overtaken by vegetation. Where a variety of hardscaping materials were used together in a small space, that area might be given a detail study in the final rendering. Vegetation was measured and checked against the 1923 or 1924 editions of Standardized Plant Names for consistency in identification and nomenclature. Common Latin names for trees, shrubs and sometimes vines were provided for almost every record.

Treatment of vegetation shows prejudice towards older materials. While extant tree stumps were included in the record, more recent plantings were sometimes left out. For one of the first records, the Gov. Christopher Gore Place (HABS MA-210-A), all trees with trunk diameters less 6" were excluded. The exclusion is explicitly stated on the Gore Place drawing sheets, and as later records show that this policy was not always enforced, one may consider that if it were in place it would be stated rather than assumed. Perennials, on the other hand, were generally not noted in the field notes or plans because Mayall discounted the value of vegetation that might be no older than 25 years at most.

Each HALGP project had a cover sheet that featured a location map for the site, and listed the staff ivolved with the dates when the measurements were taken and the drawings were executed. Unfortunately, these unnumbered sheets were not photocopied for the LC reference volumes, although it appears that most (or all) were scanned for the LC website.

Most records include one general plan of the site and two or more drawings of details of features and structures associated with the garden, such as fences, gates, arbors, summer houses, and wells. Some records include a sheet that collaged several elements such as a plant list, a plant location key, details of a hardscape feature or copies of multiple historic plans. For records with multiple plans, overlays were infrequently used, although a few records have sheets created on the same scale with matched seams (see Gov. Jonathan Belcher Place, HABS MA-196). The general plans almost all have contour lines, spot elevations, dates and locations of present and previously existing structures, circulation features and materials, and some historical data on the evolution and use of the site. Garden details usually focused on the formal ornamental areas of the site, although field notes do include detailed plans of service areas for which final plans were not always drawn.
Measured drawing of gazebo
Measured drawing of the summer house at The Vale (HABS MA-204)

HABS/Parker Oviatt

Records Submitted

During HALGP's first year of operation, seventeen garden records were initiated, including six of the eight sites to receive more than two sheets of plan drawings: HABS MA-215 (6); HABS MA-2-33 (3); HABS MA-169 (4); HABS MA-204 (5); HABS MA-168-A (3); and HABS MA-210A (4). Ten garden records were initiated between June 1936 and the end of May 1937. The remainder of the measuring projects started before September 1938, with the exception of the John Heard Estate (HABS MA-321) which was recorded in 1939.

It is possible that other sites were measured in 1938 or 1939 without completion or transmittal of the drawings to the Library of Congress. In Brown's August 1938 HALGP report, the Wilson, West, Simpson and Tomlinson gardens, all in Salem, had been or were in the process of being measured. Final drawings for these records were never transmitted. The penultimate HALGP record, the Judge Hayden Place (HABS MA-294), was completed on August 30, 1939. Between this record and the final HALGP record to be transmitted, the John Heard Estate (HABS MA-321), only four of twenty-seven records with HABS numbers between MA-294 and MA 321 were ever transmitted to the Library, an unusually large gap in the numbering sequence. The pencil notations on the Heard Estate drawings and the lack of dates, names or signatures on the cover sheet suggests that this record was transmitted in an incomplete state. It is possible that the missing twenty-four records included the four untransmitted records named above and possibly more that were simply never completed.

Endnotes

1. These numbers are based on information provided on the drawing sheets. Administrative correspondence gives additional WPA project, registry, and application numbers.
2. R. Newton Mayall, "Recording Historic American Landscape Architecture," Landscape Architecture 26 (Oct. 1935):1-11.
3. William Schack, "A Lost Chapter of New York History," Landscape Architecture 27 (Oct. 1936): 13-17. Consulting The Consolidated Catalogue to the Index of American Design or other sources on this branch of the WPA may provide valuable information on this connection.
4. Elizabeth G. Pattee, "Garden Index," Landscape Architecture 32 (Oct 1941):70-71.
5. Thomas C. Vint to Frank Chouteau Brown, 24 Nov. 1937, and John P. O'Neill to Frank Chouteau Brown, 10 Dec.1937, Box 8, RG 515, NARA II; "The Lindens," MA-2-33, Field notebooks 788: 103-27, 29:1-7, 144, HABS/HAER Collection, Prints and Photographs Division, Library of Congress.
6. Ellen S. Woodward to John J. McDonough, 28 July 1938, and Frank Chouteau Brown to Eleanor Hayward, 3 Aug. 1938, Box 8, RG 515, NARA II.
7. Brown, "Report," 1; Field notebook 23: 1-49,129-138, HABS/HAER Collection, Prints and Photographs Division, Library of Congress.
8. Frank Chouteau Brown, "Report on the Massachusetts Historic American Landscape & Garden Survey of the Massachusetts Works Progress Administration," (15 Aug. 1938), 2, Box 9, RG 515, NARA II; Frank Chouteau Brown to John P. O'Neill, 23 Nov. 1937, Box 8, RG 515, NARA II.

HALGP Surveys at the Library of Congress

Last updated: March 22, 2022