Last updated: May 24, 2023
Article
The Joseph Bellamy House: The Great Awakening in Puritan New England (Teaching with Historic Places)
Courtesy Jerry Dougherty, WikiMedia Commons
This lesson is part of the National Park Service’s Teaching with Historic Places (TwHP) program.
The rural town of Bethlehem, Connecticut still conveys an image its first minister would recognize. This small, tight-knit New England community contains pristine examples of modest 18th-century houses that surround a charming village green. The stark white steeple of the First Church of Christ (Congregational) fills the horizon. To the north, opposite the village green, the Reverend Joseph Bellamy's immense white clapboard house rises from the top of a hill, an imposing presence that makes the village appear diminutive in comparison. The house stands today as a reminder of Bellamy's role as a leading preacher, author, and educator in New England from 1740 to 1790.
About This Lesson
This lesson is based on the National Register of Historic Places registration file, “Joseph Bellamy House” with photographs, and other sources on the Great Awakening and Joseph Bellamy. This lesson was written by Barbara Bradbury Pape, Site Administrator of the Bellamy-Ferriday House & Garden. It was edited by Jean West, education consultant and Teaching with Historic Places staff. This lesson is one in a series that brings the important stories of historic places into classrooms across the country.
Where it fits into the curriculum
Time Period: 1740s-1790
Topics: This lesson plan will help students gain a deeper understanding of the Great Awakening as well as the role Puritan ministers played in 18th-century New England.
United States History Standards for Grades 5-12
The Joseph Bellamy House: The Great Awakening in Puritan New England relates to the following National Standards for History:
Era 2: Colonization and Settlement (1585-1763)
- Standard 1A: The student understands how diverse immigrants affected the formation of European colonies.
- Standard 2B: The student understands religious diversity in the colonies and how ideas about religious freedom evolved.
Curriculum Standards for Social Studies
National Council for the Social Studies
The Joseph Bellamy House: The Great Awakening in Puritan New England relates to the following Social Studies Standards:
Theme I: Culture
- Standard C - The student explains and give examples of how language, literature, the arts, architecture, other artifacts, traditions, beliefs, values, and behaviors contribute to the development and transmission of culture.
- Standard D - The student explains why individuals and groups respond differently to their physical and social environments and/or changes to them on the basis of shared assumptions, values, and beliefs.
Theme II: Time, Continuity and Change
- Standard B - The student identifies and uses key concepts such as chronology, causality, change, conflict, and complexity to explain, analyze, and show connections among patterns of historical change and continuity.
- Standard C - The student identifies and describes selected historical periods and patterns of change within and across cultures, such as the rise of civilizations, the development of transportation systems, the growth and breakdown of colonial systems, and others.
- Standard D - The student identifies and uses processes important to reconstructing and reinterpreting the past, such as using a variety of sources, providing, validating, and weighing evidence for claims, checking credibility of sources, and searching for causality.
- Standard E - The student develops critical sensitivities such as empathy and skepticism regarding attitudes, values, and behaviors of people in different historical contexts.
Theme III: People, Places and Environments
- Standard B - The student creates, interprets, uses, and distinguishes various representations of the earth, such as maps, globes, and photographs.
- Standard D - The student estimates distance, calculate scale, and distinguishes other geographic relationships such as population density and spatial distribution patterns.
- Standard G - The student describes how people creates places that reflect cultural values and ideals as they build neighborhoods, parks, shopping centers, and the like.
- Standard H - The student examine, interprets, and analyze physical and cultural patterns and their interactions, such as land uses, settlement patterns, cultural transmission of customs and ideas, and ecosystem changes.
- Standard I - The student describes ways that historical events have been influenced by, and have influenced physical and human geographic factors in local, regional, national, and global settings.
Theme IV: Individual Development and Identity
- Standard A: The student relates personal changes to social, cultural, and historical contexts.
- Standard B: The student describes personal connections to places associated with community, nation, and world.
- Standard D - The student relate such factors as physical endowment and capabilities, learning, motivation, personality, perception, and behavior to individual development.
- Standard E - The student identifies and describes ways regional, ethnic, and national cultures influence individual’s daily lives.
- Standard F - The student identifies and describes the influence of perception, attitudes, values, and beliefs on personal identity.
- Standard G - The student identifies and interprets examples of stereotyping, conformity, and altruism.
Theme V: Individuals, Groups, and Institutions
- Standard A - The student demonstrates an understanding of concepts such as role, status, and social class in describing the interactions of individuals and social groups.
- Standard B - The student analyzes group and institutional influences on people, events, and elements of culture.
- Standard D - The student identifies and analyzes examples of tensions between expressions of individuality and group or institutional efforts to promote social conformity.
- Standard F - The student describes the role of institutions in furthering both continuity and change.
Theme IX: Global Connections
- Standard B - The student analyze examples of conflict, cooperation, and interdependence among groups, societies, and nations.
Theme X: Civic Ideals and Practices
- Standard A - The student examine the origins and continuing influence of key ideals of the democratic republican form of government, such as individual human dignity, liberty, justice, equality, and the rule of law.
Objectives for students
1. To describe the basic principles of Puritanism.
2. To examine the role of religion in 18th-century New England.
3. To consider the causes and effects of the Great Awakening.
4. To trace the career of Reverend Joseph Bellamy and examine his role as a religious leader in New England during and after the Great Awakening.
5. To conduct research on prominent historical figures in their own community.
Materials for students
The materials listed below can either be used directly on the computer or can be printed out, photocopied, and distributed to students.
1. Two maps of Colonial Connecticut and lots in North Purchase;
2. Three readings by contemporaries and scholars about Bellamy's life and work;
3. Three drawings of the home and Bethlehem, Connecticut;
4. Three photos of the house, Bellamy's pulpit, and tomb.
Visiting the site
The Bellamy-Ferriday House & Garden, a property of The Antiquarian and Landmarks Society, is located on 61 Main Street North at the intersection of Routes 61 and 132 in Bethlehem, Connecticut. Visitors can tour the house and grounds, including a circa 1915 formal parterre garden, on Wednesdays, Saturdays, and Sundays from May to October. The hours are 11:00 a.m. to 4:00 p.m. Group tours are available by reservation. For more information, contact the Bellamy-Ferriday House & Garden, P.O. Box 181, Bethlehem, Connecticut 06751.
Getting Started
Inquiry Question
The Connecticut Historical Society, Hartford
What does the location of the two churches tell you about the role they played in 18th-century society?
Setting the Stage
By 1600, some Protestants felt that the Reformation, begun in 1517 when Martin Luther began to openly criticize practices of the Catholic Church, had not gone far enough to eliminate Catholic influence. In England, a group of Calvinists became known as Puritans because they wanted to "purify" the Church of England of any remaining Catholic tendencies. In 1630, a group of more than 1,000 Puritans left England and founded the Massachusetts Bay Colony. Over the next decade, thousands more followed and established Puritan towns over a wide area of New England.
Based on the doctrine of Protestant Reformer John Calvin, the Puritan religion proclaimed that not everyone in society would achieve eternal salvation. God selected some souls to save and condemned the rest to hellfire. Puritans opposed elaborate church decoration and priestly vestments, and insisted that individual congregations be free from control by a general church organization. In the colonies, churches were controlled by the members of the congregation rather than by their ministers. The job of a minister was to teach, preach, and set an example.
By the second half of the 17th century, religious fervor had begun to die down in the colonies as many people began to concentrate on material rather than spiritual matters. Religion for many had become more of an accepted social routine rather than a deep personal conviction. In the 1730s, concern over the declining state of religion led to several small, local religious revivals that paved the way for a more intense resurgence known as the Great Awakening.
Locating the Site
Map 1: Colonial Connecticut, 1758
Drawn by Mother Jerome Nagel
Joseph Bellamy was given a house, a salary, and 100 acres (lot 12, Tier 3) to "draw his wood." Reverend Bellamy also purchased lot 7, Tier 4, the plot on which his house stood, from Joseph Wells. Additionally, Bellamy purchased lots 7 and 3, Tier 1 from Thomas Minor and William Martin, respectively. He used the land for farming to support his wife, their seven children, the theological students that he taught and housed, and his servants.
Questions for Map 2
1) Shade in Bellamy's land holdings on Map 2.
2) Lot 7, Tier 4 = 100 acres. Estimate the total acreage of all of Reverend Bellamy's holdings.
3) Recalling that the area was forested, and dotted with stone outcroppings and swamps, would the land be ready to farm? What would be necessary to turn it into productive farmland?
Determining the Facts
Reading 1: The Great Awakening
Jonathan Edwards, minister of the Congregational Church of Northampton, Massachusetts, wanted to reawaken religious devotion in a society where moral principles seemed to be declining along with church membership, a problem occurring throughout the colonies. In 1734, Edwards led a small revival to "bring the sinful to a knowledge of God and to the experience of spiritual rebirth."¹ Upon hearing Edwards and other ministers preach, audiences felt extreme despair over their sinful behavior followed by a sense of God's forgiveness. Those with a reawakened religious fervor were said to have been saved or "reborn." Over a six-month period there were more than 300 "conversions." Nonetheless, by the end of 1735, this religious resurgence began to die down.
Then George Whitefield, a young, charismatic, English Methodist preacher, began traveling up and down the colonies. Whitefield's unique method of preaching involved dramatically depicting the horrors faced by sinners condemned to Hell. His fearful audiences became hysterical as they realized their sinfulness and their peril. Recognizing their utter dependence on Christ for their salvation, hundreds of members of Whitefield's audience underwent conversion and were reborn. Through his passionate sermons, George Whitefield revived the religious enthusiasm Jonathan Edwards had stirred and helped it to spread.
After preaching in some of Boston's churches, Whitefield went to Northampton, Massachusetts to preach in Edwards' church. The congregation wept and moaned, and Edwards was as taken as his congregation with the dynamic preacher. He and several other ministers, including the young Joseph Bellamy, a minister in Connecticut, spent most of 1741-1742 riding about New England preaching impassioned sermons meant to bring "sinners" back to the fold of the church. The movement spread among Chrsitians throughout the northern and central colonies.
The Great Awakening, as this period of religious resurgence came to be called, appealed to all levels of society, but particularly to the common man. Instead of sitting in a meeting house with a local congregation listening to a highly intellectual sermon, worshippers stood in open fields filled with thousands of other people to hear sermons preached in emotional and simple language. For people who led lives based on hard work and sincere worship, these were profound religious experiences.
¹Bernard Bailyn, Robert Dallek, et al. The Great Republic, Vol. 1 (Lexington, MA: D.C. Heath and Company, 1992), 169-70.
Reading 1 was compiled from Bernard Bailyn, Robert Dallek, et al. The Great Republic, Vol. 1 (Lexington, MA: D.C. Heath and Company, 1992); James A. Henretta and Gregory H. Noble, Evolution and Revolution (Lexington, MA: D.C. Heath and Company, 1987); and general references on the Great Awakening.
Questions for Reading 1
1) What problems with the Congregational Church troubled Jonathan Edwards? What action did he take to solve these problems?
2) Who was George Whitefield? How did he inspire a religious revival in the American colonies?
3) What was the Great Awakening? How did it appeal to common people?
Determining the Facts
Reading 2: Joseph Bellamy
The Reverend Joseph Bellamy (1719-1790) was a leading preacher, author, and educator in New England in the second half of the 18th century. In 1735, Bellamy completed four years of study at Yale University where his coursework included arithmetic, algebra, Latin, Greek, Hebrew, rhetoric (effective use of language in writing and speaking), and logic. Following his graduation, he spent a year and a half studying theology and boarding with the prominent minister Jonathan Edwards of Northampton, Massachusetts. He was licensed to preach in 1737. In response to the North Purchase residents' request to the General Court, 20-year-old Bellamy became the minister in Bethlehem, Connecticut in 1740.
Joseph Bellamy's theology was rooted in Puritan beliefs, yet he molded the religion to fit the people rather than having the people fit the religion. Bellamy's sermons reveal his knowledge of the Bible and theological debate, but also human nature. Through his sermons and writings he sought to link traditional Calvinist doctrine with the reformers' belief that the "offer or call of the gospel was to everyone without exception." Reverend Bellamy unquestionably believed in the traditional Puritan doctrines of original sin, the lack of free will, the need for saving grace, and God's arbitrary choice in granting salvation. He also maintained the view that an excess of material goods and worldly influence corrupted humans. Although Bellamy often criticized human behavior, his sermons were not as emotional and filled with "fire and brimstone" as Jonathan Edwards' famous "Sinners in the Hands of an Angry God."
Instead, Bellamy warned listeners to resist worldly temptations and to be serious about their duty to God, as in the sermon he preached on October 7, 1747, at Stratfield, Connecticut:
"The world looks gay to you, and your companions entice you along, but verily that road leads to eternal ruin. I see you and know the way you take. I pity you, I call to you, I warn you. I command you...Remember the Creator, be mindful of God now, without any further delay,--in the days of thy youth."1
Reverend Bellamy fervently believed that religion should be "a heart-affecting, soul transforming, vital efficacious remembrance of God," not a "mere empty, dry, lifeless notion of God in the head."2 He argued that God promised all people, rather than the select few, salvation. Bellamy preached the gospel to all who wanted to listen, and because he was such an effective speaker, he became well known in New England. A book about the clergy in his region noted that, "Pious people and those without religion, the learned and the unlearned, the orthodox and the heterodox, united in pronouncing him an eloquent preacher."3
With the approval of his new congregation, Reverend Bellamy traveled extensively throughout Connecticut. Over a two-year period in the early 1740s, he spoke more than 450 times to audiences outside his congregation. However, Bellamy, Edwards and other revivalist ministers became disenchanted with the fanatical extremists that the Great Awakening also generated from the population. As a result, they gave up itinerant preaching. Bellamy settled back down in Bethlehem to a more normal minister's work of preaching once or twice a week to his own parishioners. It was also at this time that Bellamy became the leader of the New Divinity ministers, who shunned the beliefs of the "Old Light" preachers (the social elite who dominated Congregational theology prior to the Great Awakening). Bellamy's beliefs remained constant. Bellamy pursued a vigorous career as a writer, publishing 22 books in his lifetime, the most influential of which was True Religion Delineated, written in 1750. He also took in theological students and occasionally served as a guest preacher to other congregations.
The combination of Bellamy's oratorical abilities and his passion for and dedication to his profession led Lt. Eli Caitlin to write on August 11, 1775, "the lecture is warned this day 3 o'clock p.m. & everyone will rejoice to hear Dr. Bellamy preach."4 Contrary to Caitlin's belief, not everyone enjoyed listening to Bellamy preach. His ability to communicate coupled with his ardent beliefs set Bellamy apart from some of his ministerial colleagues. In 1763, fellow minister Gideon Hawley wrote to Bellamy claiming, "I don't know of but two clergymen however in the country that appear to like your principles."5 Many of his colleagues vehemently opposed Bellamy, believing that God chose people to be saved in a predetermined manner rather than people choose God to achieve salvation. Bellamy tried to avoid confrontation with them when it was unnecessary due to his belief that anger was a sign of evil. In a letter to one of his critics, Bellamy wrote:
"Perhaps I did not express myself as accurately in my sermon as I ought; but in my Essay, which contains my real sentiment, I have taken great care in my expressions. And you like my Essay, it seems. If so, we do not differ; and is it not a pity to enter into controversy, if we do not differ? Would not Satan be glad? And would not good people be grieved?"6
On the day that Bellamy died, the Reverend Ezra Stiles, one of Bellamy's longtime critics and an Old Light minister, remarked, "He was of a haughty domineering temper and till of late years uncensorious of his brethren in the ministry and others who opposed him...he was...of a dogmatical and overbearing disposition...his numerous noisy writings have blazed their day, and one generation more will put them to sleep."7
There were admirers, as well, who recalled at the time of his death that Joseph Bellamy had remained true to his beliefs and had dedicated his life to helping his family, parishioners, theological students, and all who sought God's salvation. An article printed in the Boston Evening Transcript in 1935 speaks to Bellamy's lasting legacy to the town of Bethlehem:
"Dr. Bellamy not only named the town, but he virtually founded it, guided it through its first early years, became its wealthiest resident, owned the biggest house in it, put the town on the map through his own reputation as a scholar and a divine [devoted to God], attracted many theological students to it who spent money on board and room, and left it at his death a well established and flourishing community."
1 Glenn Paul Anderson, Joseph Bellamy (1719-1790): The Man and His Work (Unpublished Ph.D. dissertation, Boston University, 1971), 209.
2 Ibid., 210.
3 The Clergy of Litchfield County (Litchfield, CT: Litchfield County University Club, 1896), 41.
4 Caroline Woolsey Ferriday, Reverend Joseph Bellamy (Bethlehem, CT: Privately Published), 191B.
5 Ibid., 126.
6 Ibid., 124.
7 Franklin B. Dexter, ed. The Literary Diary of Ezra Stiles, Vol. III, January 1, 1782 - March 6, 1785 (New York: Charles Scribners Sons, 1901), 384-385.
Reading 2 was compiled from The Clergy of Litchfield County (Litchfield, CT: Litchfield County University Club, 1896); Glenn Paul Anderson, Joseph Bellamy (1719-1790): The Man and His Work (Unpublished Ph.D. dissertation, Boston University, 1971); Franklin B. Dexter, ed., The Literary Diary of Ezra Stiles, Vol. III, January 1, 1782-March 6, 1785 (New York: Charles Scribners Sons, 1901); Caroline Woolsey Ferriday, Reverend Joseph Bellamy (Bethlehem, CT: privately published); and Mark Valeri, "The New Divinity and the American Revolution," William and Mary Quarterly, Vol. 46, (1989).
Questions for Reading 2
1) Was Joseph Bellamy an effective preacher? Provide evidence to support your answer.
2) Describe Bellamy's beliefs. How were they similar to and different from other 18th-century ministers?
3) Did Bellamy respect his parishioners? Did he respect his fellow ministers? Support your answer with evidence.
4) What was the opinion of Reverend Ezra Stiles regarding Joseph Bellamy? What was the opinion of Lt. Eli Caitlin about Joseph Bellamy?
5) Did Reverend Joseph Bellamy have a lasting impact on history or was Reverend Stiles correct in arguing that Bellamy's influence would last for only "one generation more" beyond his lifetime? Explain your answer.
Determining the Facts
Reading 3: Insight into Joseph Bellamy
Reverend Bellamy has been described as, "in person manly, of tall stature, in the latter part of his life well-clothed with flesh."1 He was physically imposing, standing more than six feet tall and weighing approximately 300 pounds. His voice was large and clear. Like Jonathan Edwards and other ministers of the time, he wore a white wig and a simple robe when he was in the pulpit. "His whole air and manner were indicative of authority."2
Reverend Bellamy's religious writings present only one side of this complex man. His personal correspondence provides additional insight into his character. Joseph Bellamy, father of seven children, wrote the following letter to his son, Jonathan:
Bethlem Feb. 6 1773
For Mr. Jonathan Bellamy at Norwich
My dear Child,
Yours of Jan. 20 and one a little before I have received, and it gives me pleasure to hear that your situation pleases you...You need an almighty allwise Father, my Child, who will live forever. The great Conductor of allthings & the Father of Lights to take care of you, to guide yr [sic] steps & be yr Father. Of him you might ask wisdom, every hour & he can give & is willing to give Wisdom to him that asketh; & how to get through this world's evil, die in peace & be happy in the World to come without his friendship & patronage I know not. He has been my hope & my life & my guide from my youth up, & he is a very kind Father...Take time to read your Bible. Take time two or three times a day for a secret prayer--the favour of God is worth more than all the world & without it you are undone forever. Therefore seek first the kingdom of God & his righteousness & all things shall be added unto you...How much Cash will you have need of in the Spring? Or What else do you want that we can do for you?...All well at Common. Lucy more healthy than for many years past. May God Almighty Bless you.3
Since it was common practice in colonial times for young theology students to spend a year or two under the direction of a pastor, Bellamy had always accepted students in his home. With his success as a speaker and writer, greater numbers sought his instruction, so Bellamy organized a theology school in his home, the first in the country. At least 42 students are known to have studied with him, and as many as six resided at the same time in the third floor dormitory. Following a planned course of study, Bellamy engaged his students' minds through question-answer discussions and reading from a wide variety of Christian and anti-Christian writers. Former students included Jonathan Edwards, Jr., future vice-president Aaron Burr (Jonathan Edwards' grandson), and Joseph Eckley. Reverend Bellamy continued to correspond with his former students, even after they had left his bustling household, as seen in this letter sent to him by Joseph Eckley:
August 20 1775
Mr. Chapman is this morning to set out on his journey to New England. By him I take the opportunity of sending these lines, together with the money I am indebted to you for my board etc. last winter...I often think of the privilege I enjoyed at Bethlem & the improving & agreeable hours spent in your company. I bear in mind your advice & instructions & hope I shall always regard them....
Whenever you take a journey into the Jerseys my Father & Mother would be glad of the pleasure of your company at their house. They desire to join with me in respectful compliments to yourself, Mrs. Bellamy & all the family.
Joseph Eckley4
1 The Clergy of Litchfield County (Litchfield, CT: The Litchfield University Club, 1896), 41.
2 Glenn Paul Anderson, Joseph Bellamy (1719-1790): The Man and His Work (unpublished Ph.D. dissertation, Boston University, 1971), 258.
3 Caroline Woolsey Ferriday, Reverend Joseph Bellamy (Bethlehem, CT: Privately published), 183.
4 Ibid., 192.
Reading 3 was compiled from The Clergy of Litchfield County (Litchfield, CT: Litchfield County University Club, 1896); Glenn Paul Anderson, Joseph Bellamy (1719-1790): The Man and His Work, (Unpublished Ph.D. dissertation, Boston University, 1971); Caroline Woolsey Ferriday, Reverend Joseph Bellamy (Bethlehem, CT: privately published); and the Litchfield Historical Society, Bellamy Papers.
Questions for Reading 3
1) How did Joseph Bellamy's physical appearance and voice help him to communicate?
2) From reading Bellamy's letter to his son, what can you infer about the kind of parent he was? From reading Eckley's letter to Reverend Bellamy, what can you infer about the kind of teacher he was?
3) Are Bellamy's actions as a parent and teacher consistent? Explain your answer.
Visual Evidence
Drawing 1: View of the center of Bethlehem (from John Warner Barber's Connecticut Historical Collections, 1836)
The Connecticut Historical Society, Hartford
This drawing, from an illustrated guide to the towns of Connecticut, is the earliest known view of Bethlehem, drawn approximately 40 years after Bellamy's death. Bellamy's house is the one to the right of the two trees in the center of the drawing and to the left of the Congregational Church.
Questions for Drawing 1
1) What can we learn about Bethlehem in 1836 from this drawing?
2) What elements dominate the drawing?
3) Based on the location of his house, what was Bellamy's status in his community?
4) What does the presence of the second church suggest about changes in religious attitudes in Bethlehem following Bellamy's death in 1790? From what you know about Bethlehem and Joseph Bellamy, do you think there were two churches in the town during his lifetime?
Visual Evidence
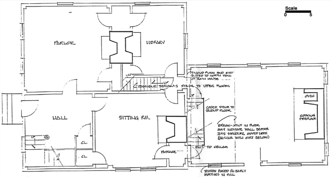
Drawing 2: Conjectured first floor plan of the Bellamy House, circa 1760
Russel Wright
Visual Evidence
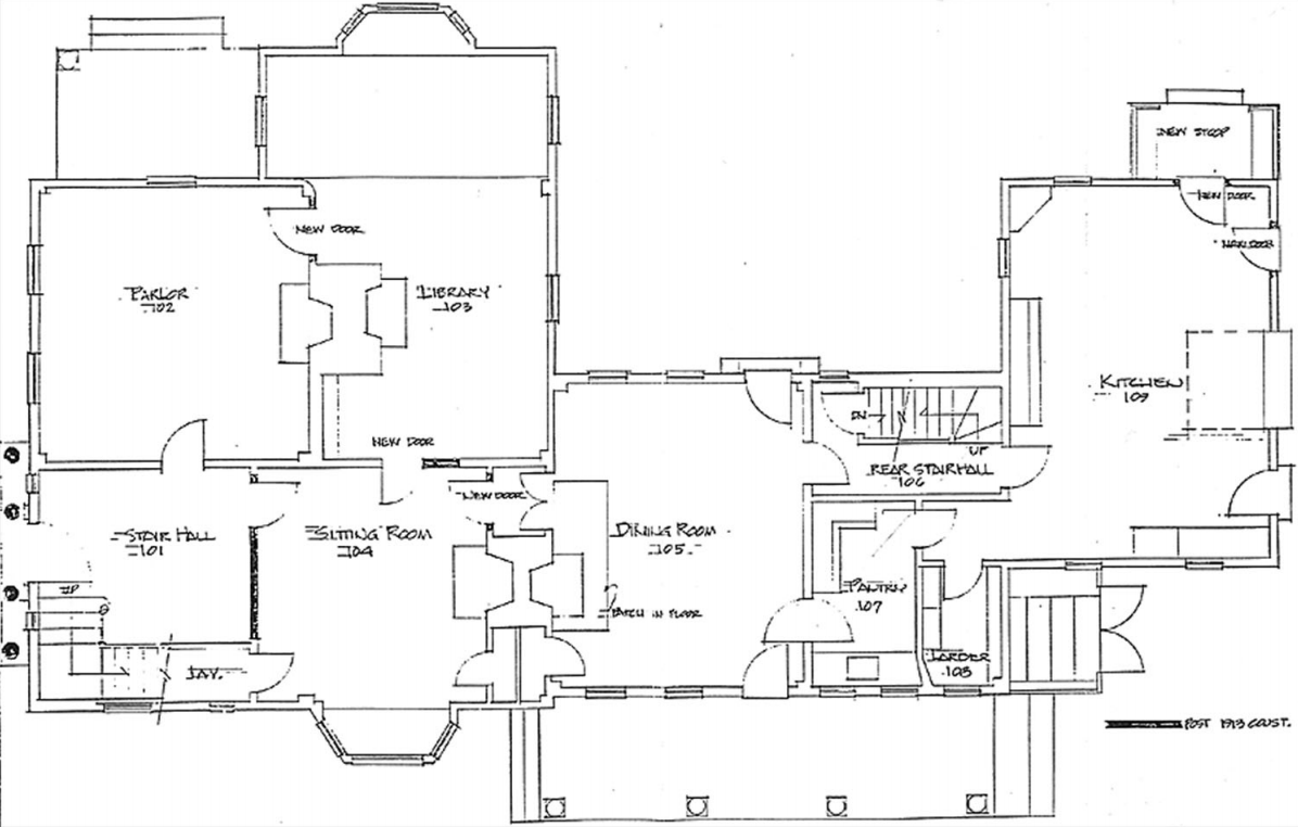
Drawing 3: Modern floor plan of the Bellamy-Ferriday House
Russel Wright
Visual Evidence
Photo 1: The Bellamy-Ferriday House
Ferriday Collection, The Bellamy-Ferriday House and Garden Archives
Reverend Bellamy's house remained in his family until 1868. In the 1880s, the Hull family added bay windows and a porch. In 1912, Henry McKeen Ferriday purchased the property as a summer home. He added a service wing with kitchen, pantry, and servants' rooms. His daughter, Shakespearean actress Caroline Ferriday, began the restoration of the home to its 18th-century appearance and conducted extensive research to document the historical Joseph Bellamy. Today the property is operated as a historic house museum and garden.
Questions for Photo 1 and Drawings 2 & 3
1) Based on Photo 1, how would you describe the Bellamy-Ferriday House? Why do you think Caroline Ferriday wanted to restore the house to its 18th-century appearance? How is the house used today?
2) Study Photo 1 and then try to match the photo to the floor plans in Drawings 2 and 3.
3) Use the scale on Drawing 2 to calculate the square footage of the original first floor of the Bellamy house. How might these rooms have been used during Bellamy's residence?
4) Locate the additions made by the Hull and Ferriday families. Did their additions change the square footage of the first floor? If so, use the scale from Drawing 2 to calculate the amount of new square footage added in Drawing 3.
5) What original features of Reverend Bellamy's house disappeared or were hidden because of the changes made by the Hull and Ferriday families?
Visual Evidence
Photo 2: The Reverend Joseph Bellamy's pulpit, First Church of Christ, Bethlehem, Connecticut
Photo by Bill Hosley
Bellamy preached from a pulpit at the First Church of Christ that was built to accommodate his size. Today, there is a step stool behind the pulpit so that average-sized preachers can be seen behind it.
Questions for Photo 2
1) Do you think Bellamy's large, high pulpit may have helped him to be a more effective preacher? If so, how?
2) How would you describe the pulpit? What can it tell you about the time period in which it was built?
Visual Evidence
Photo 3: The Old Cemetery
The Bellamy-Ferriday House and Garden Archives. Photo by Caroline Ferriday.
This is an image of the old cemetery at the northern tip of Bellamy's land. Bellamy's grave is the large flat stone elevated off the ground.
Questions for Photo 3
1) Compare Bellamy's grave marker with those of the other people buried around him. How are they similar? How are they different?
2) What can be inferred about Bellamy from his grave?
Putting It All Together
The following activities are designed to engage students in learning about Reverend Joseph Bellamy's life and personality and how it shaped colonial American religion, his community, and history.
Activity 1: Letter Writing
After students have completed Readings 2 and 3 and studied Drawings 1 and 2, ask them to imagine that they are theology students boarding with Reverend Bellamy and his family. In either groups or individually, ask the students to compose a letter to their parents describing their teacher, Reverend Bellamy, their surroundings, and what they are learning. In the letter the students should explore their reactions to the experience. Are they happy? Is Bellamy a fair and interesting teacher? Is he kind? Do they find it difficult studying in a household filled with children, servants, farmhands, students, and visitors or does the atmosphere stimulate their interest?
Activity 2: Gravestone Design
Ask students to refer back to Bellamy's grave marker in Photo 2 and complete one of the following activities.
A. Students should select a prominent local figure now deceased--a civic or religious leader, sports figure, or entertainment celebrity--and design a gravestone and epitaph for that person. In addition to drawing or modeling the design and presenting it to the class, have them explain what about the person's life, their appearance, career, or beliefs, influenced their design. You might want to approve students' project ideas to ensure that they treat the material with appropriate seriousness and respect.
B. Gravestone designs changed over the course of Joseph Bellamy's life from grim death's heads to winged angels, reflecting the change from a theology that emphasized damnation to one that emphasized salvation. Near the time of his death, designs featuring weeping willows and urns became popular, recalling funeral imagery from ancient Greece and Rome. Have students visit a local cemetery and study a modern grave marker and photograph it. Students could also find a photograph of a grave online using resources such as https://www.findagrave.com/. They should analyze what values and beliefs are reflected in the design and imagery of the marker. Have students present their findings in class.
Activity 3: Historical Research in the Community
Have students identify an individual who was prominent in the history of your community just as Joseph Bellamy was in the history of Bethlehem. Sometimes an historical individual leaves a great deal of evidence in one community, including home, church with pulpit, land ownership papers, and grave. In other cases the physical and documentary record may be scanty. Divide the class into small groups to investigate what documents, artifacts, historic places, and/or place names associated with the person remain in the town. Coordinate the historical research with groups that might be able to assist the students including church historians, town or courthouse clerks, the local historical society or architectural preservation league, local history reference librarians, or curators of university collections or museums.
Additional Resources
By looking at The Joseph Bellamy House: The Great Awakening in Puritan New England, students will learn about the role of religion in 18th-century life and the resurgence of religious fervor known as the Great Awakening. Those interested in learning more will find that the Internet offers a variety of interesting materials.
Connecticut Landmarks
Connecticut Landmarks, formerly The Antiquarian & Landmarks Society, is Connecticut's statewide museum-based preservation organization. It owns the Bellamy-Ferriday House & Garden, also known as the Joseph Bellamy House. The mission of the organization is to preserve historic structures, sites, collections and landscapes, as well as to interpret the social and material dimensions of their properties to the public.
Plymouth Colony Archive Project of the University of Virginia: Archives and Analysis of Plymouth Colony, 1620-1691
The Plymouth Colony Archive Project features online historical analyses and original source documents on the Colony's social history. The site features artifacts, maps, wills, court records, architecture, and samples of material culture that help students gain insight into what life was like for these early colonists.
Library of Congress: Religion and the Founding of the American Republic
Visit this online exhibit by the Library of Congress that uses prints, paintings, and samples from its Rare Book and Special Collections Division, as well as biographical sketches, to illustrate the role of religious groups in the colonial era and their contributions to the American Revolution.
National Humanities Center
TeacherServe, a program of the National Humanities Center, features a section called Divining America: Religion and the National Culture which offers essays on religion during different time periods in the U.S., including The Great Awakening.