Article

Locke and Walnut Grove: Havens for Early Asian Immigrants in California (Teaching with Historic Places)

Storefronts on a street
Main Street, Locke; California Stake Parks Office of Historic Preservation

Nestled at a slight bend along the narrow River Road and overshadowed by tall, drooping trees, Walnut Grove lies mid-way between Sacramento and Stockton in northern California. Also fronting the Sacramento River, one mile to the north of Walnut Grove, is Locke, a small, peaceful community settled by people who had earlier lived in Walnut Grove.

The river was once a major thoroughfare for shipping agricultural products to markets across the country. Today, only excursion boats and houseboats share its waters. River Road parallels the bends of the Sacramento River on its eastern side and, like the river, still carries some traffic between San Francisco and Sacramento in Northern California, but like the other narrow roads that once connected the communities with larger cities, it has been largely bypassed by travelers, who favor the quicker freeways and interstate highways that crisscross the region.

Here, in the Sacramento County delta area, where the San Joaquin and Sacramento Rivers converge, the history of the once bustling Chinatowns and nihonmachi's (Japan towns) can still be seen in buildings constructed some 50 to a 100 years ago. Store signs in Chinese and in Japanese still advertise the Dai Loy Gambling House, the Hayashi Company Store, and other places that once provided services to the immigrant agricultural workers who began their American experience in the Sacramento Delta.

About This Lesson

This lesson is based on the National Register of Historic Places registration files, "Walnut Grove Japanese-American Historic District," "Walnut Grove Chinese-American Historic District," "Walnut Grove Commercial/Residential Historic District," and “Locke Historic District” (with photographs).

This lesson was written by Rita G. Koman, an education consultant. It was edited by Teaching with Historic Places staff. TwHP is sponsored, in part, by the Cultural Resources Training Initiative and Parks as Classrooms programs of the National Park Service. This lesson is one in a series that brings the important stories of historic places into the classrooms across the country.

Where it fits into the curriculum

Topics: The lesson could be used in units on immigration or on multiculturalism in America. The lesson also could be used to enhance the study of Asian American history.

Time Period: Late 19th century to early 20th century

United States History Standards for Grades 5-12

Locke and Walnut Grove: Havens for Early Asian Immigrants in California relates to the following National Standards for History:

Era 6: The Development of the Industrial United States (1870-1900)

  • Standard 1B: The student understands the rapid growth of cities and how urban life changed.
  • Standard 1C: The student understands how agriculture, mining, and ranching were transformed.
  • Standard 2A: The student understands the sources and experiences of the new immigrants.
  • Standard 2B: The student understands "scientific racism", race relations, and the struggle for equal rights.

Curriculum Standards for Social Studies

National Council for the Social Studies

Locke and Walnut Grove: Havens for Early Asian Immigrants in California relates to the following Social Studies Standards:

Theme I: Culture

  • Standard A: The student compares similarities and differences in the ways groups, societies, and cultures meet human needs and concerns.

Theme III: People, Places, and Environment

  • Standard G: The student describes how people create places that reflect cultural values and ideals as they build neighborhoods, parks, shopping centers, and the like.
  • Standard I: The student describes ways that historical events have been influenced by, and have influenced, physical and human geographic factors in local, regional, national, and global settings.

Theme V: Individuals, Groups, and Institutions

  • Standard I: The student analyzes groups and institutional influences on people, events, and elements of culture.

Theme VII: Production, Distribution, and Consumption

  • Standard B: The student describes the role that supply and demand, prices, incentives, and profits play in determining what is produced and distributed in a competitive market system.

Objectives for students

  1. To explain the contribution of early Asian immigrants to the development of California's agricultural industries.
  2. To identify and describe the obstacles encountered by Asian cultural groups as they struggled to make a living and find a place in American society.
  3. To describe life in Walnut Grove and Locke during the late 19th and early 20th centuries.
  4. To analyze the condition and status of early Asian immigrants using visual evidence.
  5. To locate and learn about ethnic enclaves that made contributions to the history of the student's own community.

Materials for students

The materials listed below can either be used directly on the computer or can be printed out, photocopied, and distributed to students.

  1. Two maps of California and the Delta region;
  2. Three readings about the Chinese and Japanese immigrants and their lives in Locke and Walnut Grove;
  3. Five photographs and a drawing of Locke and Walnut Grove.

Visiting the site

Walnut Grove is located nearly midway between Sacramento and Stockton on California Highway 160. Locke is located one mile north of Walnut Grove. From San Francisco, take Interstate 80 to State Route 12 which intersects with Highway 160. From Sacramento, take Highway 160 south. The historic sections of town can be seen on foot or by car. Only businesses are open to the public. Throughout this area, farmlands growing fruit and vegetables sprawl along the roadsides in all directions. For more information, visit the website of Locke.

Getting Started

Inquiry Question

Exterior of a building with Chinese architectural accents

Photo by Mary L. Manieri for Par Environmental Services

What purpose might this building serve? Do any architectural details help identify it with a cultural group? Which group?

Setting the Stage

Both Chinese and Japanese immigrants faced much hostility and discrimination when they came to America. Rooted in nativism and racial prejudice, the discrimination against the Chinese in California was encouraged by politicians and labor leaders. Mid-19th-century Chinese immigrants were driven out of the mining fields, but were then recruited to build railroads and to reclaim swamps. When those jobs were completed, they were expected to go back to China, but many stayed on, hoping eventually to earn enough money to retire to their native villages and live comfortably with their families.

Beginning in the 1860s, California and many of its cities passed anti-Chinese laws, and in 1882 Congress passed the first of the so-called Chinese Exclusion Acts. The first act suspended immigration of Chinese laborers to the U.S. for 10 years, permitted laborers already in the U.S. to remain, and permitted entry of students, teachers, merchants, and government officials, but excluded the Chinese from U.S. citizenship. The act was later extended in 1888 to prohibit Chinese laborers from re-entering the U.S. after leaving. The act was made "permanent" in 1904. The Immigration Act of 1924 went even further, establishing an immigrant quota of two percent of the number of foreign-born persons of that nationality resident in the U.S. in 1890 and ruled that no alien ineligible to become a citizen shall be admitted to the U.S. as an immigrant.

The Japanese also endured discrimination which was reflected in a "Gentlemen's Agreement" accepted by the Japanese and American governments in 1907. The agreement called for Japan to stop the emigration of its laborers to the U.S. by refusing to issue passports to such persons. In return, the U.S. government was to refrain from passing laws officially excluding Japanese immigrants. This arrangement, however, did allow for family unification--that is, Japanese men in America could send for their wives and children. Other men married by proxy, meaning that the women could travel to this country to meet and live with the bridegrooms they had never before seen. About 20,000 Japanese women came to America through this practice. The agreement was then suspended in 1924 by the Immigration Act which excluded immigration from Japan and practically barred all Asians from entering the United States.

During these unpredictable times, the Chinese and Japanese grouped together for companionship and survival, forming ethnic enclaves known as Chinatowns and nihonmachi's (Japan towns). For those laborers who were able to immigrate to the U.S., the Chinese benevolent societies helped them with passage to America, assisted them in finding jobs and housing, and provided recreation. The Japanese government offered similar services through Japanese officials stationed in several western American cities.

Although these Asian immigrants endured forceful discrimination, they proved among the most successful in overcoming great obstacles and making a good life for themselves in a new land. Two communities that demonstrate the experiences of early Asian immigrants and their struggle to find a place in American society are Locke and Walnut Grove, California. Located near the junction of the Sacramento and San Joaquin Rivers, these towns became a central area for immigrant agricultural workers in the Delta region.

Locating the Site

Map 1: California, 1851

Map of California
Library of Congress, Geography and Map Division, Washington, D.C.

Walnut Grove and Locke are located near the junction of the Sacramento and San Joaquin Rivers, an area known as the Delta region. The two towns lie east of San Francisco and about midway between Sacramento and Stockton, in the northern third of the great central valley that is made up of the Sacramento and San Joaquin valleys.

Questions for Map 1

  1. Using a world map, locate Japan, China, and California. Approximate the distance between these countries and the United States. Considering the modes of transportation available in the late 19th century and early 20th century, do you think this was an easy trip for the Japanese and Chinese laborers?
  2. Locate San Francisco, Sacramento, and the confluence of the Sacramento and San Joaquin Rivers. Notice the topography of the map. Why would this area be a good location for agricultural industries?

Map 2: Locke and Walnut Grove, California, and neighboring Delta towns.

Map depicting Sacramento and Walnut Grove

Questions for Map 1

  1. Locate the towns of Locke and Walnut Grove. Then locate the Sacramento River. Based on the map's scale, approximately how far are the towns from the river? Why would this be a good place for the Chinese and Japanese immigrants to establish their communities? Why would this area be prime farming and agricultural land?

Determining the Facts

Reading 1: Chinese and Japanese Immigrants Come to America

The Chinese
The initial impetus for Chinese immigration to America was news of the discovery of gold in California in 1848. Most of the early immigrants came from China's southern provinces of Kwangtung (modern name Guangdong) and Fukien, where flood, famine, and general social and economic upheaval were capped by a revolution that lasted from 1851 to 1864. Unable to support their families in the midst of this chaos, some 300,000 Chinese made their way to the United States, the "Land of the Golden Mountain." Most came with the intention of returning home to their families as soon as they made their fortunes.

Between 1850 and 1880, operators of mining camps and railroad construction projects eagerly hired Chinese workers until European American workers began to demonstrate bitter opposition. Although prejudice and violence drove the Chinese out of mining, they played a major role in the construction of the western section of the transcontinental railroad. When the railroad was completed in 1869, some of those Chinese laborers were hired to work on an extensive levee project in the Sacramento-San Joaquin River Delta.

The levees, constructed by Chinese laborers, eventually turned 500,000 acres of swamp into some of California's most valuable farm land. When machinery replaced human labor on the levee project, the reclaimed land provided a new source of employment. With the creation of large farms and a shift from wheat to intensively cultivated fruits and vegetables, cheap manual labor was in demand. In the last part of the 19th century, the Delta, known as the home of the Bartlett Pear, was ranked as the pear capital of the world. By the 1890s, when technological improvements in canning made it profitable to grow asparagus, even more hand labor was needed. The Delta eventually accounted for nearly 90% of the world's asparagus crop.

The predominantly male Chinese immigrant population proved an able work force for the older pear orchards and the booming asparagus fields. Few had brought their wives and children with them, because they planned to return to their homeland when they had saved enough money to pay their debts in China. The workers found their jobs through Chinese "bosses," the same businessmen who set up Chinatowns throughout the Delta to use as bases of operation. Laborers congregated in these towns between jobs, waiting for the bosses to direct them to their next jobs. They stayed in boarding and rooming houses, often owned by the bosses, and bought their supplies at the bosses' stores. This system maintained the Chinese workers' indebtedness and obligation to the bosses, who also catered to the recreational needs and desires of the predominantly adult male population by providing a variety of recreational activities, legal and otherwise. Gambling was an especially popular pastime because it provided not only recreation, but also the hope of substantial financial gain.

The Japanese
After the Chinese Exclusion Act of 1882 prohibited further Chinese immigration, Japanese laborers began working the fields. The majority of Japanese immigrants came to America after 1890. While China was a victim of depression and imperialism, Japan was a modernizing nation and rising imperial power. The technological change that accompanied modernization caused social upheaval, particularly in the countryside. Many thousands of Japanese decided to emigrate to America.

San Francisco was the center for Japanese immigrants who preferred city life, but the nearby agricultural fields attracted those who had worked as farmers in their native country. Like the Chinese, most Japanese agricultural workers were recruited by labor bosses. By 1904, Japanese workers were farming 50,000 acres in California, and by 1919 the figure had risen to 450,000 acres.

Like the Chinese, most of these Japanese farm workers came as single men, but they were able to establish family lives sooner than the Chinese. Some soon brought over the wives they had left at home. Others married "picture brides," women chosen by the immigrant's family who sent their sons photographs of their prospective wives. In the Delta, the Japanese farm laborers built houses for their families in an area known as a nihonmachi, or Japanese section of town. Some even became landowners and started their own farms.

Questions for Reading 1

  1. When and why did the Chinese emigrate? The Japanese?
  2. How did levees help to create good farmland in the delta region?
  3. What were two major crops of the delta region?
  4. Who were "bosses" and how did they operate? What services and recreational opportunities did they provide?
  5. What were the differences between Chinese and Japanese family arrangements? Do you think the differences would have affected their communities? Why or why not?
  6. Why were the Japanese laborers able to find jobs in the fields that had previously been worked primarily by Chinese?


Reading 1 was adapted from James H. Charleton, "Locke Historic District," (Sacramento County, California) National Historic Landmark Nomination Form, Washington, D.C.: U.S. Department of the Interior, National Park Service, 1990, 21-23; Roger Daniels, Asian America, Chinese and Japanese in the United States Since 1850 (Seattle: University of Washington Press, 1988); Roger Daniels, Coming to America, A History of Immigration and Ethnicity in American Life (New York: Harper Collins Publishers, 1990); and George Chu, "Chinatowns in the Delta: The Chinese in the Sacramento-San Joaquin Delta, 1870-1960," California Historical Society Quarterly, XLIX (March, 1970): 21-37.

Determining the Facts

Reading 2: Life in Walnut Grove

Walnut Grove became a center for both Chinese and Japanese agricultural workers in the Delta. The town was started in 1851 by John Wesley Sharp, who was instrumental in building one of the levees along the Sacramento River. He built a boat landing and a hotel for travelers on the river, and eventually constructed a lumber mill, brickyard, armory hall, ferry, school, and a general store with a post office in the back. All these businesses attracted settlers to Walnut Grove, and when Sharp died in 1880, the town was thriving.

After Sharp's death, the heirs sold a large portion of the estate to Agnes Brown and her son, Alex. By 1890, Alex Brown ran the hotel, a cattle ranch, a store, a warehouse, and cultivated 4,000 acres of crops. He was also U.S. Postmaster and an agent of the Southern Pacific Railroad line of steamers, Wells Fargo and Company Express, and the Western Union Telegraph Company. Brown, a highly successful entrepreneur, was involved with commerce, agriculture, shipping, banking, and private utilities--enterprises which were carried on by his sons.

Brown was a staunch supporter of the Chinese American and Japanese American communities in Walnut Grove. He provided financial backing to several Asian businessmen and rented land to others at reasonable rates. The Chinese community, which may have been established as early as 1875, grew during the 1880s. Chinese businessmen developed a commercial and social center for the hundreds of Chinese laborers who worked throughout the region. Although these laborers usually lived near their jobs, they came into town on their days off. Similarly, Japanese businessmen, wanting to serve the area's agricultural workers, began settling in the northern section of Walnut Grove's established Chinatown about 1896. By 1905, Japanese were farming approximately 80 percent of the land in the Walnut Grove vicinity.

When a fire broke out in the Asian section of town in 1915, Brown provided two tug boats that hosed water on the fire for two days. After the fire, the Japanese rented land from Brown, and built their own community north of Chinatown. Brown himself constructed a building with space for 14 businesses, organized a water company, and supplied water and sewer facilities to the two Asian districts (as well as to the small European American district). Recognizing the need for houses, hotels, and boarding houses, as well as businesses, in the new nihonmachi, Japanese architects and carpenters from all over Northern California volunteered to help with the rebuilding effort. Thus, unlike many other California cities, where Asians worked in buildings constructed by European Americans, Walnut Grove developed a Japanese commercial district whose buildings were designed and built by Asians.

By the 1920s, hundreds of Japanese laborers flooded the town every weekend. One Japanese woman who owned a barber shop remembered that on weekends, when the town was teeming with people from nearby farms, she often cut hair from dawn to dusk with no breaks. She estimated that every Sunday 1,000 men would come into Kawa Shima, as the local Japanese community called Walnut Grove. By then there were two movie theaters, a Japanese Association, Methodist and Buddhist churches, a variety of commercial services, schools, a dentist, and a surgeon.

Brown sought to attract more European Americans to Walnut Grove by building a new section of town known as Brown's Alley, but the population remained primarily Asian during its early years. Walnut Grove became the only town in California with two complete Asian communities functioning within a European American-managed community. The Chinese section suffered another devastating fire in 1937, but rebuilding began immediately. By the 1940s, however, the Chinese population was rapidly aging and dying out due to the strict immigration restrictions that did not allow them to replenish their numbers. During World War II, the Japanese became the victims of Executive Order 9066, which forcibly removed them--citizens and non-citizens alike-- to relocation camps. Although most of Walnut Grove's Japanese residents returned after the war, they did not stay long. Some moved their families to nearby cities and others returned to Japan. The heyday of Walnut Grove was over.

The Brown family is no longer involved in community businesses, but the influence they had on the development of Walnut Grove remains evident in the town's historic districts. Although many changes have occurred over the years, the majority of Walnut Grove's original buildings are still standing. Today the Chinese Masonic Lodge (the Bing Kong Tong Benevolent Society) is privately owned and not open to the public, and the Japanese language school serves as a community center. The Buddhist church is still a contributing part of the town. The Alex Brown General Store (now "The Big Store") is still open to the public under the present proprietors, the Lee family. The town's convenient location and emphasis on tourism attracts summer boaters on the Delta waterways. The surviving late-1930s Chinese buildings, and the Japanese district that looks much as it did in the 1920s, remain as a testimonial to the memory of a once-thriving community.

Questions for Reading 2

  1. What businesses were controlled by Alex Brown?
  2. How did Brown help the Chinese and Japanese immigrants?
  3. Where in Walnut Grove did the Japanese first settle? Why did they move?
  4. Why did Japanese from other areas help in the building of a nihonmachi in Walnut Grove? How did their involvement help make the Walnut Grove nihonmachi unusual?
  5. Why did Walnut Grove begin to decline in the 1940s?


Reading 2 was compiled from Mary L. Manieri, "Walnut Grove Chinese-American Historic District," "Walnut Grove Japanese-American Historic District," and "Walnut Grove Commercial/Residential Historic District" (Sacramento County, California) National Register of Historic Places Registration Form, Washington, D.C.: U.S. Department of the Interior, National Park Service, 1990; and Tushio Sakai and Carol Branan, "Walnut Grove Gakuen Hall," (Sacramento County, California) National Register Registration Form, Washington, D.C.: U.S. Department of the Interior, National Park Service, 1980.

Determining the Facts

Reading 3: Life in Locke

Founded in 1915 after the disastrous fire in Walnut Grove, Locke was the last of several rural Chinatowns established in the Delta region. Although some Chinese elected to stay in Walnut Grove and rebuild, one group, originally from the Chung Shan district in Kwangtung province, China, decided to build their own separate town. The Chung Shan Chinese were a minority within the larger Chinese immigrant population in the United States. Their common Cantonese dialect gave them a sense of identity and group cohesion. Under the leadership of Lee Bing and six other merchants, the Chung Shan group secured a lease on a site carved out of a large pear orchard one mile north of Walnut Grove along the Sacramento River levee. Because the State of California's Alien Land Law of 1913 prevented aliens--including the Chinese--who were not American-born from owning land, a committee of Chinese merchants obtained a verbal lease from George Locke who owned the land in the Delta region.

Three Chung Shan merchants had already set up businesses at the Locke site in 1912. They served the transient labor force that worked in the nearby asparagus fields and in the canneries and packing sheds built by the Southern Pacific Railroad across River Road in 1909. For the first few years, the town continued to be "more a service center for farm laborers than a residential community."¹

The town was laid out north of Chan's store (one of the early structures), on River Road along the levee. Buildings on River Road and Main Street, which paralleled River Road on the flat below the levee, combined commercial and residential uses, and merchants often lived above or behind their businesses. A more purely residential area grew up farther east. Along these streets rose one- and two-story frame buildings in a vernacular style; that is, the style of most working people in the locality. The residents did not consider using expensive materials, both because they could not own the land, and because many still held the dream of returning to China. Built quickly, the town was essentially complete by 1930.

Because Locke was not incorporated and had no police, it became a popular location for Prohibition-era speakeasies. The large numbers of people attracted from surrounding cities made drugs, gambling, and prostitution big businesses. During the 1920s, the town's permanent population peaked at 600, but weekend visitors swelled that to 1,500. A theater, a hotel, a lodge, nine grocery stores, six restaurants, a flour mill, two slaughterhouses, brothels, bars, gambling halls, and boarding houses brought prosperity to the town. Those good times did not last long, however. The Depression began and Prohibition ended. In addition, the asparagus industry declined, and increased mechanization began to reduce the need for unskilled farm labor.

Locke survived after other rural Chinese communities perished, reflecting a community cohesiveness that was evident for many years. Although many second-generation ChineseAmericans moved to the cities for better economic opportunities, older people tended to remain in Locke, where they spoke only Chinese and ignored the intrusions of the modern world. Although the Alien Land Laws were eventually ruled unconstitutional, the residents of Locke never purchased the land upon which their houses were built.

Locke is now a National Historic Landmark representing the largest, most complete, example of a rural, agricultural Chinese-American community in the United States. Over the years, the Chinese population has dwindled to a handful. The remaining residents lease the land as they always have. Much of Locke has fallen into a state of disrepair and the wood construction is at high risk for fire damage. Locke is a redevelopment area under the jurisdiction of the Sacramento Housing and Redevelopment Agency, County of Sacramento. The County of Sacramento understands the dire need to protect this important cultural resource and is currently exploring options to provide long-term preservation of historic Locke.

Questions for Reading 3

  1. Why did some of the Chinese laborers start their own town north of Walnut Grove?
  2. Why was Locke such a popular town during Prohibition?
  3. What events led to the decline of Locke?
  4. What is the present status of Locke? What do you think could be done to preserve a town like Locke (or Walnut Grove)? Consider such typical preservation activities as promoting tourism, developing rehabilitation projects, improving roads and other elements of the infrastructure, and encouraging awareness of the problem among Asian Americans in other regions. Do you think any of those activities might help Locke to survive? Explain your answer.


¹ Christopher L. Yip. "A Time for Bitter Strength: The Chinese in Locke, California," Landscape XXII (Spring 1978): 13.

Reading 3 was compiled from Jack S. Duke, "The Town of Locke" (Sacramento County, California) National Register of Historic Places Registration Form, Washington, D.C: U.S Department of the Interior, National Park Service, 1970; James H. Charleton, "Locke Historic District" (Sacramento County, California) National Historic Landmark Nomination Form, Washington, D.C.: U.S. Department of the Interior, National Park Service, 1990; and Bruce Jones, "Delta Advisory Planning Council Report," 1975.

Visual Evidence

Photo 1: Chinese Mason Building, Market Street elevation, Walnut Grove

Exterior of a two-story building

Photo by Mary L. Manieri for Par Environmental Services

Visual Evidence

Photo 2: Chinese Mason Building, River Road elevation, Walnut Grove

Exterior of a building with Chinese architectural accents

Photo by Mary L. Manieri for Par Environmental Services

This building housed the Bing Kong Tong Benevolent Association and served as the social center for Chinatown. It was constructed soon after the 1937 fire to replace an earlier temple and benevolent society on the same spot.

Because of their importance to the entire community, public and institutional buildings often are consciously designed to reflect a group's culture. This is less likely to be true for private homes and businesses.

Questions for Photos 1 & 2

  1. Which side of the building seems most to reflect Chinese architecture? What are the features that lead to this conclusion?
  2. Can examples of Chinese design be found on the Market Street side of this building?
  3. What role did the benevolent association play in the community of Walnut Grove? Does this building seem appropriate for such an organization? Why might this building have reflected more Chinese influence than others in the district?

Visual Evidence

Photo 3: Gakuen Hall, Walnut Grove

A one-story building on a lawn

California State Parks Office of Historic Preservation

Gakuen Hall is the only known example of a Japanese culture and language school designed and built by Japanese as a reaction to the California public school segregation laws of 1921. When the Japanese were forced into relocation camps during World War II, the local landowner held the building in trust until the Japanese could return. Today the building serves as a community center for the Japanese residents of Walnut Grove.

Questions for Photo 3

  1. Why did the Japanese build a separate culture and language school?
  2. What might they have been preparing the children for? Would this be necessary today?

Visual Evidence

Photo 4: Main Street, Locke

Storefronts on a street

Photo by Shannon Bell

Questions for Photo 4

  1. Considering that the Chinese who settled Locke had been displaced by a fire, why do you think they continued to construct wooden buildings?
  2. Is the Chinese influence obvious in this photograph? Why or why not?

Visual Evidence

Photo 5: Dai Loy Gambling Museum, Locke, 1984

A large room with tables and artifacts on display

Photo by Jet Lowe, Historic American Buildings Survey

Visual Evidence

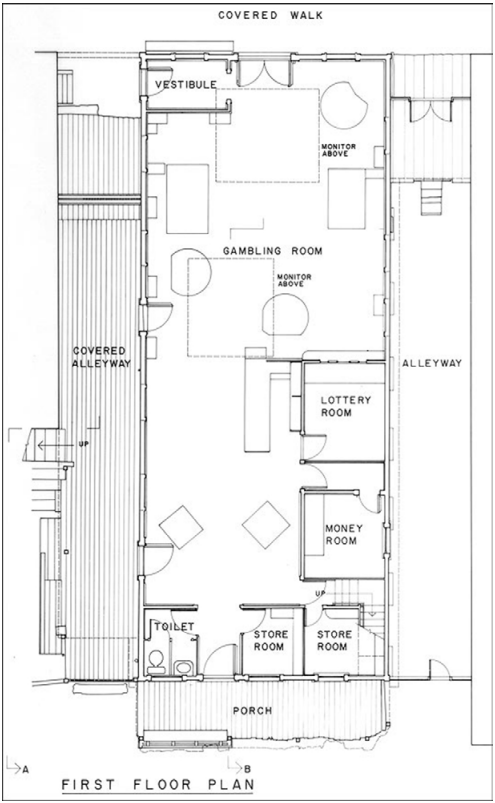
Drawing 1: First floor plan, Dai Loy Gambling Museum, Locke, 1979

Diagram of a gambling hall

William F. Hand, delineator; Historic American Buildings Survey

Questions for Photo 5 and Drawing 1

  1. Note that the Dai Loy Gambling House is now a museum. Should a gambling hall be preserved? Why or why not?
  2. Compare the floor plan of the Dai Loy Gambling Museum and the interior view. Where was the photographer standing? What rooms, features, and equipment shown in both visuals can be identified?
  3. Notice the opening to the second floor, from which the first floor could be monitored. Why would the room need to be monitored?

Putting It All Together

The following activities will help students understand the experience of early Asian immigrants and the obstacles they encountered as they struggled to make a living and find a place in American society.

Activity 1: Life as an Immigrant
Have students work singly or in small "family" groups and imagine that they are early immigrants to California from either China or Japan. They do not speak the language of the new country. Their religion is entirely different from that of the people around them. They have never held a paying job, although they did work on their family farm in their native country. Ask students where in the new land they would seek to live, what size community they would prefer, what kind of job they would try to find, what they would do with the money they earned, and what they would do with their free time. Have them reflect on the emotions they would feel as they went about constructing this new life in California. Hold a general discussion after students have had 15 or 20 minutes to work, or have individuals or groups write a short essay describing their experiences.

Activity 2: Ethnic Enclaves
Have students research the history of their own community through local histories and photographs. What was the economic base of the community; that is, why was it founded and what kinds of work did the residents originally do? How does this compare with Walnut Grove and Locke? Ask students to find out if there are neighborhoods in the community that were, or are, identified with particular ethnic groups. What brought these groups to their community? Did they live near where they worked? Was the area where they lived similar to or different from other neighborhoods? Have the students visit a number of these neighborhoods to see if the ethnic groups have left traces. Have them note types of architecture and/or architectural details, church denominations, signs, specialty stores and restaurants, annual festivals, and clubs and fraternal organizations. Have them compare the physical traces left in these enclaves with the photos of Locke and Walnut Grove.

Supplementary Resources

By looking at Locke and Walnut Grove, students can increase their understading of the experience of early Asian immigrants and the obstacles they encountered as they struggled to make a living and find a place in American society. Those interested in learning more will find that the Internet offers a variety of materials.

Locke, California
Visit the town's website to find out more about the history of Locke and visitation information. Included on the site are details on some of the historic sites such as the Dai Loy Museum and a quick fact sheet outlining the history of Locke and its Asian community.

National Park Service
The National Register of Historic Places' feature, Asian American and Pacific Islander Heritage Month, showcases historic properties listed in the National Register and National Park units highlighting the rich heritage of Asian and Pacific peoples in America.

The National Parks History website offers an on-line book titled Five Views: An Ethnic Historic Site Survey for California for California by the California Department of Parks and Recreation, Office of Historic Preservation. This fabulous resource provides chapters on the history of Chinese Americans and Japanese Americans in California. Topics covered include immigration, settlement, discrimination, and much more.

Library of Congress
Search the Library of Congress's website for their collection of materials on Locke, California from the Historic American Building Survey. Included is an extensive photograph collection documenting the architecture of Locke. Further searches on the website for information on Japanese Americans provides details of the evacuation and relocation of Japanese Americans during World War II.

National Archives and Records Administration (NARA)
Search the National Archives and Records Administration website for their collection of materials on Japanese Americans. Included is detailed information relating to the internment of Japanese Americans. Further searches on the NARA for information on Chinese Americans reveals, among other things, a compilation of records titled "Chinese Immigration and Chinese in the United States."

U.S. Citizenship and Immigration Services (USCIS)
The USCIS website provides a number of historical research tools.

Chinese American History
The Bancroft Library at the University of California, Berkeley, has assembled a time line outlining events in Chinese American history. Included in the time line are many legislative statutes that pertain to Chinese American history.

Last updated: May 30, 2023