Article

Tamiami Trail: Next Steps

Tamiami 1 mile section completed, 2014, connecting the canal flow to Everglades National Park
Tamiami 1 mile section completed, 2014, connecting the canal flow to Everglades National Park

Background. Tamiami Trail is a 264-mile roadway (U.S. Highway 41/State Road 90) that was completed in 1928, to connect the growing cities of Tampa and Miami. Within the Everglades, the roadway embankment was constructed by excavating the underlying limestone, forming what is now the L-29 borrow canal. The excavated material was placed directly on top of the existing Everglades muck soil. Over time the muck has consolidated, which contributes to roadway instability problems.

The east/west Everglades portion of this roadway created a 25-mile impediment to natural surface water flows, and limited inflows to Shark River Slough, within Everglades National Park (ENP). In the mid 1940's a series of 45-foot long timber bridges were added to improve conveyance, but were replaced in the 1950's with smaller culverts. In the early 1960's the western 10-mile section crossing Western Shark River Slough was relocated onto the elevated L-29 levee, and larger water conveyance structures were added as part of construction on the upstream Water Conservation Areas (WCAs). The eastern 10.7-miles of Tamiami Trail between the L-31N and L-67 Extension levees remained lower, limiting our ability to raise water levels and increase flows into Northeastern Shark River Slough (see figure 1).

Eliminating Barriers to Water Flow. The Tamiami Trail (U.S. Highway 41) has long been recognized as one of the primary barriers to flow of water through the ecosystem.The need to eliminate barriers to overland flow of water in the Everglades is considered one of the indisputable tenets of restoration. Much scientific information amassed in recent decades reinforces the importance of removing these barriers to water flow in order to restore natural marsh connectivity.

In 2009, Congress authorized implementation of the plan selected in the 2008 Modified Water Deliveries to Everglades National Park, Tamiami Trail Modifications, Limited Reevaluation Report (LRR). The 2008 LRR plan consists of a one-mile bridge and road improvements to allow the increase in water levels in the adjacent canal to be raised from the current 7.5 feet to 8.5 feet. The LRR plan would improve potential marsh connectivity, reduce sharp changes in water velocity, and improve rainy season depths and durations.In addition, these modifications will improve the ridge and slough landscape and fish productivity, which could result in increased foraging success for wading birds.

Map showing the East/West portion of the Tamiami Trail and how it is an impediment to natural sheetflow.
Figure 1.  The east/west portion of the Tamiami Trail roadway is an impediment to natural sheetflow, particularly the lower elevated portion crossing Northeast Shark River Slough.
The 2008 Tamiami Trail Modifications LRR recommended plan was subsequently approved by Congress, and included construction of a 1-mile eastern bridge, and partial reconstruction of the remaining 10.7-mile roadway. These roadway improvements and the 1- mile bridge were complete by early 2013, but other Mod. Waters flood mitigation components and the East Everglades land acquisitions were still incomplete. In late 2015 construction and land acquisition efforts were sufficient to allow the Army Corps to implement a new water management operational plan and begin to increase NESRS inflows. While the Modified Water Deliveries structural and operational modifications have started to improve surface water inflows into Northeast Shark River Slough, the flow distribution benefits are limited, and flow volumes into NESRS are still constrained by the poor condition of the underlying roadway subbase.
The Tamiami Trail Next Steps Project. In March 2009, Congress approved an Omnibus Appropriations Act, that included a directive to the National Park Service: "To immediately evaluate the feasibility of additional bridge length, beyond that to be constructed pursuant to the MWD Project (16 U.S.C. SS 410r-S), including a continuous bridge, or additional bridges or some combination thereof, for the Tamiami Trail (U.S. Highway 41) to restore more natural water flow to Everglades National Park and Florida Bay and for the purpose of restoring habitat within the Park and the ecological connectivity between the Park and the Water Conservation Areas."

The specific restoration objectives from the 2009 Omnibus Appropriations Act included:
  1. increase potential ecological connectivity between the marshes in Northeast Shark River Slough and the marshes north of the Trail;
  2. restore natural marsh flow patterns (flow rates and distributions) more associated with unobstructed flows between marshes; and
  3. restore ridge and slough habitat in ENP by reconnecting historic sloughs that were severed by the existing roadway.

In November 2010, the National Park Service completed the Tamiami Trail Modifications: Next Steps Final Environmental Impact Statement, and the Record of Decision was signed in early 2011. This report presented an environmental analysis of six alternatives: a no-action alternative, and five variations of additional bridging that could be constructed along the eastern roadway, while accommodating access to all of the adjacent developed areas (these include: two Miccosukee Indian camps, three commercial and one private airboat operations, and three radio/telemetry tower arrays). The environmentally preferred alternative (Alternative 6e) recommended the construction of up to 5.5-miles of additional bridging (in four potential locations), and complete reconstruction of the remaining roadway. The recommended roadway reconstruction would remove all of the unsuitable subbase, and raise the top of the finished roadway elevation to approximately 13 feet (NGVD), to accommodate the future CERP projected design high water of 9.7 feet in the L-29 canal (see Figures 2a & 2b).
Map of the modified water deliveries
Figure 2a. The Modified Water Deliveries, Tamiami Trail modifications, with the 1-mile bridge (purple) and partial reconstruction of the roadway.
q
Map of the modified water deliveries
Figure 2b: Tamiami Trail Next Steps recommended plan (Alternative 6e), with up to 5.5-miles of additional bridging (yellow) and complete reconstruction of the remaining roadway.
q
Tamiami Trail Next Steps Phase 1. In October 2012, as the Modified Water Deliveries, Tamiami Trail improvements were nearing completion, the NPS Director gave Everglades National Park direction to begin implementing the first phase of the Next Steps project, and $3.6 million was allocated to complete a preliminary Phase 1 project design. At the same time, the Army Corps was initiating a new CERP planning effort, the Central Everglades Planning Project (CEPP). The CEPP focused on redirecting harmful Lake Okeechobee regulatory releases that currently flow into the northern estuaries, southward through the Everglades Agricultural Area, and into the central and southern Everglades.

The Tamiami Trail Modifications Next Step Phase 1 design was developed in coordination with the water flow components envisioned within the CEPP, since increasing flows through the Everglades is dependent on the roadway and conveyance improvements along eastern Tamiami Trail. The CEPP recommended plan included a new Blue Shanty flow-way that would route surface water from the southeast corner of WCA-3A, through a portion of WCA-3B, and then into the L-29 canal and NESRS wetlands, via a degraded section of the L-29 levee. Based on this CEPP configuration, our Next Steps Phase 1 design focused on raising and bridging a 3.2-mile segment of Tamiami Trail at the location of the western most bridge proposed in the 2010 Final EIS (see Figure 3).
Map of recommended plan
Figure 3.  The Central Everglades Planning Project recommended plan (Alternative 4R2), with the Tamiami Trail Next Steps Phase 1 bridging aligned with the proposed Blue Shanty flow-way.
In late 2013, Florida Governor Rick Scott pledged $90 million toward the project, with funding from the Florida Department of Transportation's (FDOT) budget. In early 2014, the NPS committed to funding 50% of the project total, up to $90M. A Memorandum of Agreement (MOA) was signed in early 2015 between FDOT, NPS, and the Federal Highway Administration (FHWA). FDOT awarded a construction contract for just over $97 million in June 2016. The original 2.6-mile western bridge was split into two bridge segments, and a within-corridor down ramp was substituted to improve access to Everglades Safari Park. The full Phase 1 project is on a fast track to be substantially complete by January 2019.
Planning for Tamiami Trail Next Steps Phase 2 . No formal planning effort has been initiated for Phase 2. Once Phase 1 is complete, 6.7 miles of the remaining eastern Tamiami Trail roadway will need to be bridged and/or reconstructed. Our highest priority is to reconstruct the remaining roadway to accommodate the 9.7 foot CERP design high water criteria, and allow to pass the required peak flows, while avoiding impacts to roadway stability (see Figure 4).
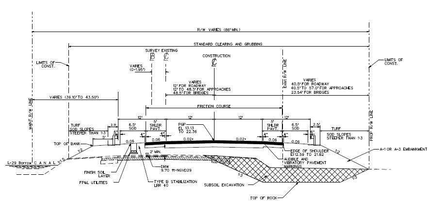
Cross section of reconstructed Tamiami Trail Roadway
Figure 4.  Typical cross-section of the reconstructed Tamiami Trail roadway looking east with the L-29 canal/left and ENP/right (Engineering Report, Appendix A, Tamiami Trail Next Steps Final EIS).
The roadway will be raised several feet (with a crown elevation of just over 13 feet NGVD), and shifted to the south to maintain embankment stability. The scope of the western 1.12 mile segment covers the roadway section from the western end of the Phase 1 construction, to a point where the new roadway can be tied into the higher elevated roadway located on top of the L-29 levee in western Shark River Slough.

Future bridge options evaluated in the FEIS include and .38 mile, .66 mile and 1.77 mile bridge located with the remaining 6.7 miles to be reconstructed.

Future Water Conveyance Options for Phase 2. The restoration objectives from the 2009 Omnibus Appropriations Act focused on increasing ecological connectivity between the NESRS marshes and the WCAs, restoring more natural marsh flow rates and distributions, and restoring ridge and slough habitat within ENP, by reconnecting historic sloughs that were severed by the existing roadway. To address the complex nature of the flow patterns in NESRS, we relied on the prior Army Corps of Engineers RMA-2 modeling of eleven bridging alternatives included in the 2005 Modified Water Deliveries to ENP, Tamiami Trail Modifications; Revised General Reevaluation Report (RGRR). This model utilizes local land features, hydraulic roughness, and topographic data to predict multi-directional flow patterns, flow velocities, and marsh water depths.
Ground surface elevations and corresponding locations of Tamiami Trail water conveyance features.
Figure 5.  Ground surface elevations (in NAVD88) within the study area, with the corresponding locations of Tamiami Trail water conveyance features.
Note that the locations of the MWD and TT:NS Phase 1 bridging corresponds well with major low lying areas within NESRS (darker green areas). Several additional low lying areas can be seen between the bridges, which may represent remnant slough communities. We will be examining these areas in detail during Phase 2 planning, as promising sites to locate additional conveyance features.
Tamiami 2.6 mile bridge under construction south of the existing road

NPS Photo

Tamiami 2.6 mile bridge under construction south of the existing road, looking west
Tamiami Bridge under construction
Tamiami Bridge under construction
View of Tamiami Bridge under construction looking east
View of Tamiami Bridge under construction looking east

Everglades National Park

Last updated: August 11, 2020