Article

Designing the Desert: Landscape & the Painted Desert Community Complex

A man and a boy sit in chairs on an apartment balcony at the Painted Desert Community Complex, overlooking brick-walled courtyards and a parking lot
Architect Richard Neutra and a young person sit outside the Painted Desert Community Complex Apartment wing in 1962.

NPS / Beinlich

National parks in the southwestern U.S. are renowned for their grand landscapes, outstanding natural formations, and associations with indigenous peoples. The vernacular buildings that comprise the region’s ranches, prehistoric dwellings, trading posts, and colonial sites reveal how people lived and worked on the land. In contrast are the modernist visitor center landscapes that were designed as part of the National Park Service’s Mission 66 program. Petrified Forest National Park’s Painted Desert Community Complex (PDCC) is one of them.

The Petrified Forest was proclaimed a national monument by President Theodore Roosevelt in 1906, recognizing the area’s uniqueness as the world’s largest repository of petrified wood. Public access to the remote site was improved when Route 66 was established in the mid 1920’s. The federal highway passed north of the monument and connected Chicago to Los Angeles with some 400 miles of road through Arizona.

To capitalize on the increased traffic through the region, local resident Herbert Lore built the Stone Tree House out of petrified wood just off Route 66. The lodge and trading post, later renamed the Painted Desert Inn, became a popular stop for tourists and locals. Its isolated but accessible location proved to be a boon for business when the monument was expanded northward in 1931 to include the Painted Desert. By 1950, park planners formally identified the need to locate a new headquarters in the north section of the park. Converting the Painted Desert Inn to meet this need was considered but ultimately rejected. By the end of the decade a new idea about park planning had taken hold that would be realized on an undeveloped site just south of the Inn.

Mission 66 & the NPS Visitor Center

The years after World War II saw an increasingly mobile population put tremendous strain on a national park system that was ill-equipped to handle the influx of visitors. Visitation rose from 3,500,000 to 30,000,000 between 1931 and 1948 while investment in parks’ infrastructure and staffing had languished since the 1930s. In response to this crisis, NPS Director Conrad Wirth promoted a 10-year funding program to modernize park facilities in the lead up to the agency’s 50th anniversary in 1966. The Mission 66 program was intended to improve the visitor experience by bringing park infrastructure and amenities up to contemporary standards while simultaneously conserving natural resources.

To meet this dual objective, a new type of building was envisioned. The NPS visitor center was born out of a need to orient visitors to the park while managing their access. A central starting point was intended to reduce unpredictable traffic patterns and prevent damage to the park. In additional, the visitor center was intended to present a modern image of the National Park Service to the 80 million visitors expected by 1966. A total of 109 visitor centers were planned for construction as part of the Mission 66 program.
This new building type was intended to reflect the agency’s modernity both in substance and in style. The visitor center was an evolution of the rustic style architecture that had become associated with a dated set of services. Mission 66 buildings, the visitor center especially, were designed to blend into the landscape through their plainness, not through their use of natural materials and form. By engaging modern architectural ideas about form and materials, a visitor center could accommodate larger crowds in a more efficient manner.

Painted Desert Community Complex - Entry

Painted Desert Community Complex is a low, ell-shaped modern style building frames a large parking lot, with several planting islands. Painted Desert Community Complex is a low, ell-shaped modern style building frames a large parking lot, with several planting islands.

Left image
The Painted Desert Community Complex as viewed from the parking lot entrance in 1962.
Credit: NPS / Beinlich

Right image
The same view of the entrance in 2017.
Credit: NPS / J. Holgerson

NPS predicted that half of the visitors to the Petrified Forest by the 1960s would be visiting a national park for the first time. To address this, the visitor center here would be designed not only to provide information and interpretation about the park but about the entire National Park System. As part of the first wave of new visitor centers, the Painted Desert Community Complex would be unique in its design as well as its mission.
Designed by Richard Neutra and Robert Alexander in 1958, the complex was intended to support visitors as well as the community of park staff who would live there. Grounded in the concept of an oasis in the desert, the complex’s design was driven by the architects’ study of sun and wind patterns at the site. Initial plans drawn up by the park service included a central visitor area, a separate administrative area, and individual single-family residences for park staff. Neutra and Alexander rejected this approach, looking to the native forms of nearby Puerco Pueblo for inspiration. They proposed orienting buildings around a central plaza to provide maximum cover from the wind with plantings, circulation, and other landscape elements supporting the visitor experience while delineating public and private areas.
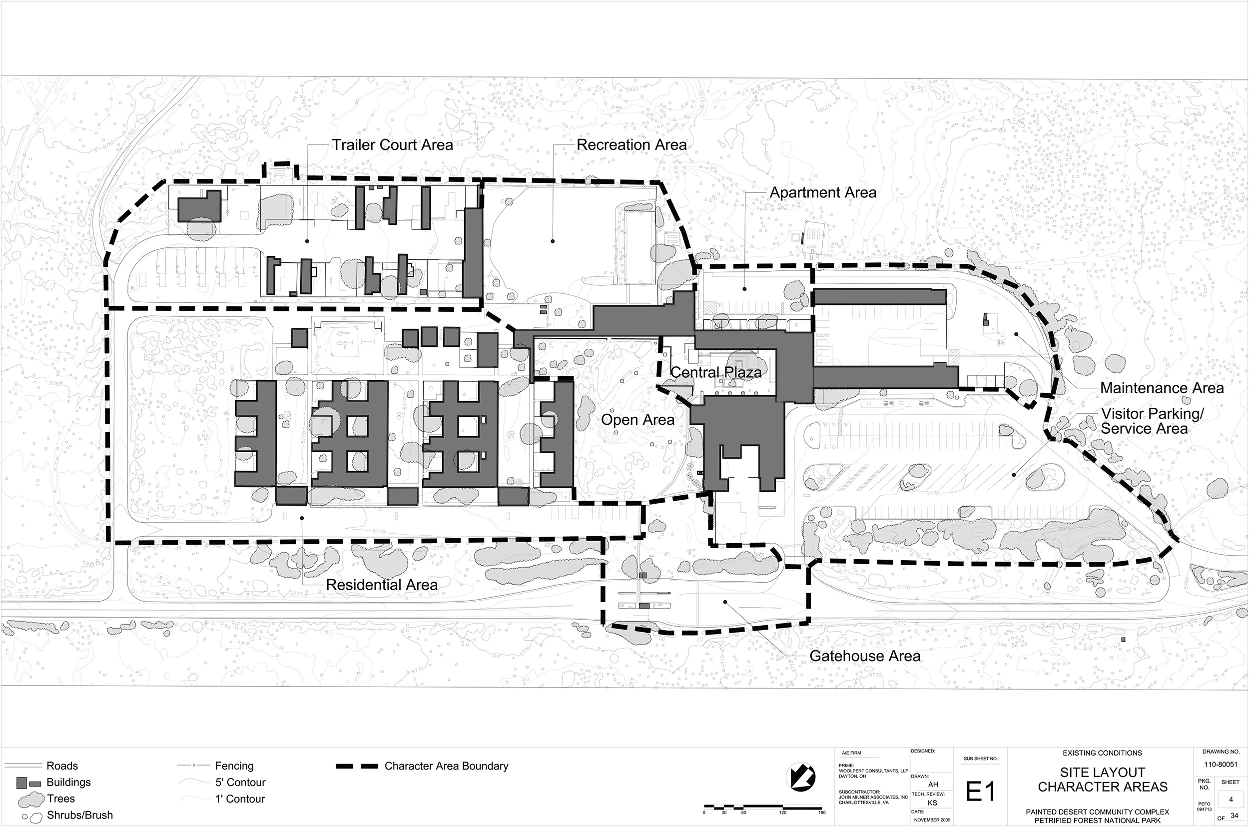
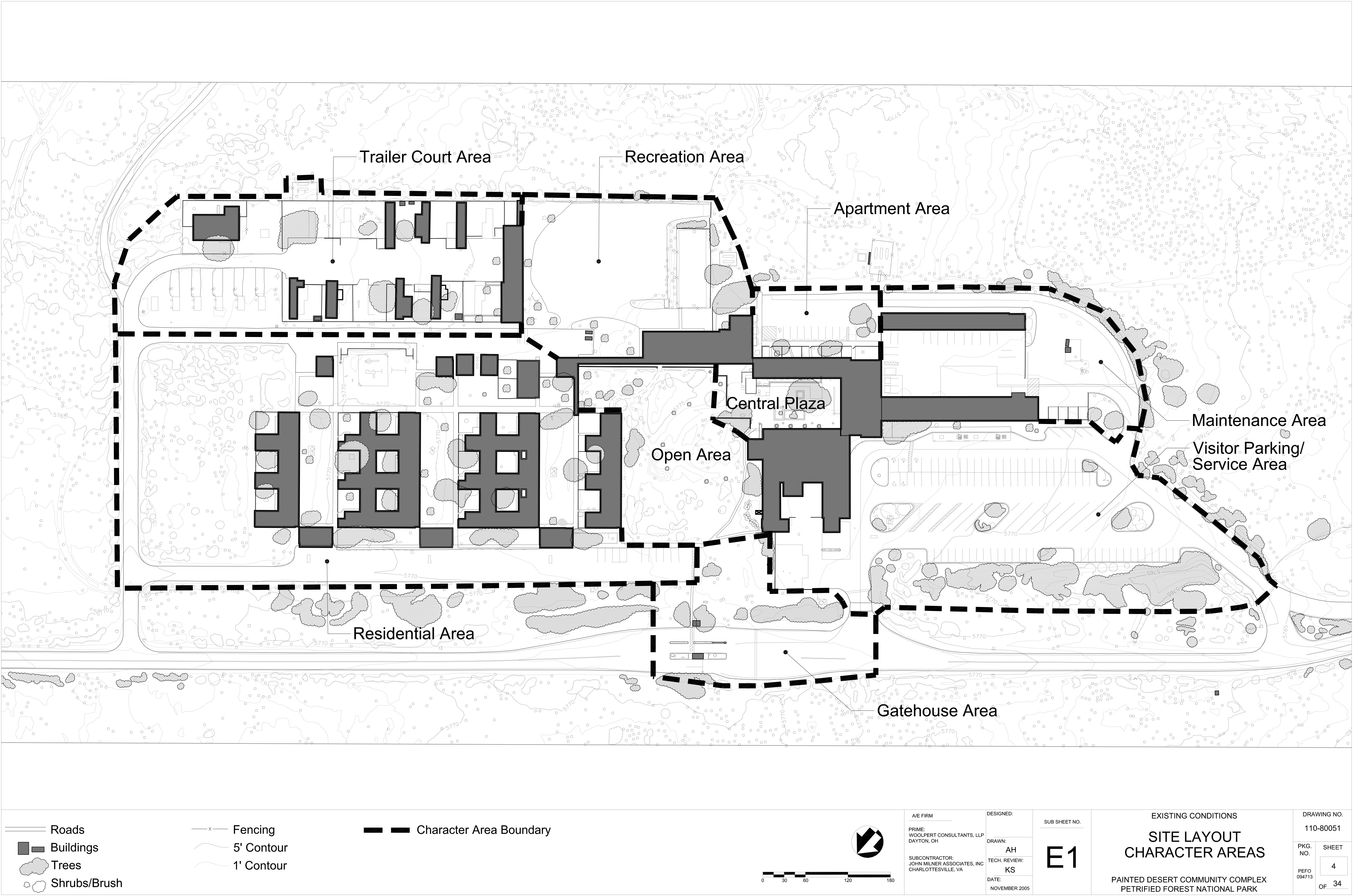
A site plan for Painted Desert Community Complex uses a dashed line to show the landscape character areas.
This plan produced for the PDCC’s Cultural Landscape Report identifies the site’s zones.

NPS

Clustering the buildings together provided shelter and privacy that the windswept landscape could not. The design called for multi-unit housing protected by high walls to create private courtyards. In addition to the courtyards, larger open spaces were designed as buffers between housing blocks and to separate the public and private areas of the complex. Although Director Wirth felt that the building arrangement was inconsistent with the vastness of the desert landscape, in the end the modern design prevailed over the NPS’s traditional approach.

The Central Plaza

The central plaza lies at the heart of the complex and is enclosed on three sides by the visitor center, apartment wing, and concession building. Viewed from the visitor center’s entrance, the plaza appears as a respite from the open road with trees, shrubs, and a reflecting pool at the far corner. Beyond a free-standing seat wall made of Arizona sandstone, the plaza’s east side blends into an Open Area that was intended for interpreting native vegetation to the public. That use was not realized until recently when the park installed a short loop trail with interpretive signage. The Open Area continues to provide a transition from the central plaza’s public area to the private park residences that lie beyond it.
A row of columns support a roof overhang of a long, low building in the Painted Desert Community Complex, facing the open paved plaza with a square planter in the middle.
The central plaza and concession building in 1962. The visitor center is in the left background.

NPS / Beinlich

The plaza's geometry, color, and materials show the park service’s commitment to modern design. The plaza is paved with exposed-aggregate concrete tinted to evoke the color of the surrounding landscape. The concrete is divided into panels that humanize the plaza’s scale. Two large rectangular planters made of concrete and local sandstone provide seating and space for trees and other plantings. Four round fiberglass planters provide relief from the plaza’s right angles and buffer the concession building’s wall of windows from the rest of the plaza. The originals were replaced in 2018.

The plaza’s plantings were intended to showcase flora that descended from the area’s prehistoric condition, connecting the park’s lush Triassic past to the arid present. Two specimens of monkey puzzle trees (Araucaria araucana) were ordered from Chile but did not survive the journey. The concept was scaled back in a 1962 plan that shows a “Triassic swamp exhibit” next to the reflecting pool, an exhibit of petrified wood, and two ginkgo trees (Ginkgo biloba) along with other trees and plants. By 1963, an updated plan retained the petrified wood display and one of the ginkgo trees but the swamp and other references to the Triassic period were eliminated in favor of a more general “oasis” concept characterized by non-native ornamentals. Outside the plaza, native plants such as Oneseed juniper (Juniperus monospernum), rabbitbrush (Ericameria nauseosa), Mormon tea plant (Ephedra torreyana), and various yuccas grounded the designed landscape in its regional setting.
Drawing of a plaza at Painted Desert Community Complex showing 1962 planting plan
A 1962 NPS drawing of the Central Plaza shows a “Triassic Swamp Exhibit” that was never built.

NPS

Residential Courtyards

At the plaza’s southeast corner the area narrows into a concrete walkway that leads to the residential area of the complex. A canopy covers the sidewalk and provides protection from the sun and seasonal rains. Stands of cottonwoods (P. fremontii, P. acuminata) and pinyon pines (Pinus edulis) were specified to reinforce the change of setting and provide shade and privacy throughout the residential area and trailer park.
Sidewalks cross at the corner of a row of residences at the Painted Desert Community Complex, with courtyards behind a brick wall.
Courtyards can be glimpsed behind the residential units’ privacy wall.

NPS

The three shared plazas that separate the housing blocks were designed with large grassy areas, drifts of native plants, and shade trees. Each plaza’s planting scheme called for its own palette of native species to distinguish one plaza from another. The overall effect would soften the concrete sidewalks and privacy walls that lined the plazas’ perimeters. Within each unit’s courtyard, Neutra intended the plantings to connect the residents with the landscape, “There against the gray block walls light blooming plants and shrubs, preferably flowering white, cream, lemon, yellow or orange, will give the best effect and convey the feeling of sun penetrating, without any glare, into the living areas of the occupant family.”
1963 planting plan for a section of Painted Desert Community Complex shows plants, open spaces, and buildings
1963 NPS planting plan for the open plazas between the blocks of residences. Note that the building outlines depicted here do not reflect their built form.

NPS

The landscape design for the Painted Desert Community Complex reflects the modern aesthetic and services that drove the Mission 66 program. As a premiere example of what would become known as Park Service Modern, the use of plantings, circulation, and open space all supported a new idea of the visitor center and park headquarters. In form, material, and intention, the complex made a clean break with the past to initiate a new era for the park and its visitors.

Mission 66: Modern Design Beyond Petrified Forest

Mission 66 visitor centers were intended to function as the hub of the park, but aspirations for the new headquarters at Petrified Forest reached even farther. The Painted Desert Community Complex was envisioned as an "Information Center" for all areas of the National Park System, and it was the first of its kind designed to introduce visitors to the concept of national parks and to parks around the country.

The Mission 66 program expanded and standardized visitor services by providing the basic information, visitor facilities, and interpretive programs that remain an essential part of a national park experience. In choosing Neutra and Alexander as architects of the Painted Desert Community Complex, the National Park Service fully accepted modern architecture for the Mission 66 program.

Petrified Forest National Park

Last updated: April 7, 2023